Részletes leírás
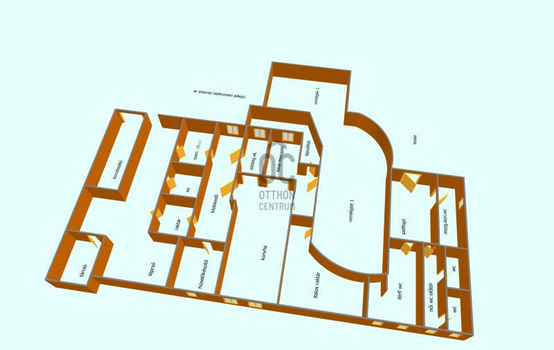
Fedezze fel Zircen található, kiváló állapotú ingatlant,amely ideális választás üzleti célú felhasználásra.Ez a 350 nm alapterületű családi ház nemcsak minőségi kivitelezésével, hanem a környék nyújtotta le-hetőségekkel is lenyűgöző.A telek mérete 1799nm, amely bőséges teret biztosít a jövőbeli fejlesztések-hez vagy bővítésekhez.Az ingatlan földszinti részén szakmailag elismert, igényes 50-60 fő befogadására alkalmas étterem mű-ködött egy szintén 60 fő befogadására alkalmas gyönyörű panorámájú terasszal.Az ingatlanban található berendezési tárgyak alku tárgyát képezik.Zirc városa gazdag kulturális örökséggel rendelkezik és a helyi közösség aktív élete mellett rengeteg ki-ránduló keresi fel a környéket.A vendéglátóipari egység adottságai révén könnyen átalakítható más üzleti célokra is,mint példáulIRODÁK,MAGÁNRENDELŐK,SZÉPSÉGSZALON,BEMUTATÓTERMEK, akár SZÁLLÁSHELYEK kialakítására.Az épület felső szintjén egy külön bejárattal rendelkező,minden szempontból igényes lakás található,melyben konyha-étkező-nappali,3 szoba,2 fürdőszoba és egy gardrob kapott helyet.Az ingatlan erkélyérőlgyönyörű kilátás nyílik a Zirci Apátságra.A tulajdonos a minőségi anyagok mellett törekedett az energiafogyasztás minimalizálására, ennek érde-kében 2023-ban:- a régebbi tetőablakok helyett,esőzajcsökkentő Velux tetőtéri ablakok kerültek beépítésre,külső-belsőrolókkal- az ereszek alatt lévő faburkolatok egy része színezett alumínium borítást kapott- 2 db Immegras Magis Pro 14 v2 T hőszivattyú, valamint egy Immergas Victrix Tera 35 Plus fali kazán,indirektmelegvíz tároló került beszerelésre- az egész rendszert PLC digitális rendszerszabályozó irányítja- a ház kapott egy dryvit hőszigetelést, valamint új színezéstAz ingatlan alápincézett,tárolóhelyiségek kerültek kialakításra.Az épület részét képezi a fedett kocsibeálló,valamint az épület mellett garázs is található.Ne habozzon kapcsolatba lépni velünk,segítünk Önnek megtalálni a tökéletes helyszínt üzleti elképzelései megvalósításához!

Veszprém megye, Zirc
 

Ingatlan adatai
Irányár: 245 000 000 Ft
Típus: kereskedelmi/ipari ingatlan
Kategória: eladó
Alapterület: 350 m2
Fűtés: -
Állapota: -
Szobák száma: -
Építés éve: -
Szintek száma: -
További adatok
Telekterület: -
Kert mérete: -
Erkély mérete: -
Felszereltség: -
Parkolás: -
Kilátás: -
Egyéb extrák:  
-
Hirdető adatai
Hirdető neve: Otthon Centrum
Kapcsolattartó: Mikolasek-Széplaki Tímea
Hirdető telefonszáma: +36 70 469 3086
Honlap: -

Üzenetet küldhet a hirdetőnek:
Az Ön neve:
Az Ön e-mail címe:
Üzenet: