Részletes leírás
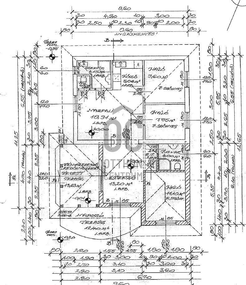
Zamárdi-Üdülőfaluban, Somogy vármegye szívében kínáljuk eladásra ezt a kiváló állapotú, használt házat, amely ideális választás fiatal felnőttek számára, akik egy modern, kényelmes otthonra vágynak.Az ingatlan alapterülete 93 négyzetméter, míg a telek mérete 669 négyzetméter, így bőséges helyet biztosít a családi élethez és a szabadidős tevékenységekhez. A házban négy tágas szoba található, amelyek közül a nappali különösen világos, barátságos légkört teremt. A prémium kivitelezés garantálja a minőséget, a beépített bútorok és szekrények pedig praktikus tárolási megoldásokat kínálnak. Az ingatlan két fürdőszobával rendelkezik, így a család minden tagja számára kényelmesen elérhető a fürdőszobai szolgáltatás. A 22,4 négyzetméteres terasz tökéletes helyszínt biztosít a kültéri pihenéshez, ahol élvezheti a napsütést és a természet közelségét.A ház fűtése gáz (cirko), amely biztosítja a kellemes hőmérsékletet a hideg hónapokban. A motoros redőnyök és az integrált szúnyogháló segítik a komfortos életet, míg az okos otthon rendszer lehetővé teszi az ingatlan modern technológiával való felszereltségét. A környék ellátottsága kiváló, hiszen a közlekedési csomópont közelében helyezkedik el, így könnyedén elérheti a város főbb részeit és a Balaton partját. Az ingatlanhoz tartozik egy garázs is, amely egy autó számára biztosít kényelmes parkolási lehetőséget, valamint egy kerti tároló, amely segít rendben tartani a külső területeket. Ez az ingatlan nem csupán egy ház, hanem egy életstílus, amely a kényelmet, a modern technológiát és a természet közelségét ötvözi. Ha Ön is szeretne egy olyan otthont, amely minden igényét kielégíti, ne habozzon felvenni velünk a kapcsolatot! Kérdéseivel bizalommal kereshet minket, örömmel segítünk Önnek a legjobb döntés meghozatalában.

Somogy megye, Zamárdi
 

Ingatlan adatai
Irányár: 134 900 000 Ft
Típus: ház
Kategória: eladó
Alapterület: 93 m2
Fűtés: gáz (cirko)
Állapota: -
Szobák száma: 4
Építés éve: 2009
Szintek száma: -
További adatok
Telekterület: 669 m2
Kert mérete: 669 m2
Erkély mérete: 22 m2
Felszereltség: -
Parkolás: -
Kilátás: -
Egyéb extrák:  
-
Hirdető adatai
Hirdető neve: Otthon Centrum
Kapcsolattartó: Gáborjányi Attila
Hirdető telefonszáma: +36 70 716 9491
Honlap: -

Üzenetet küldhet a hirdetőnek:
Az Ön neve:
Az Ön e-mail címe:
Üzenet: