Részletes leírás
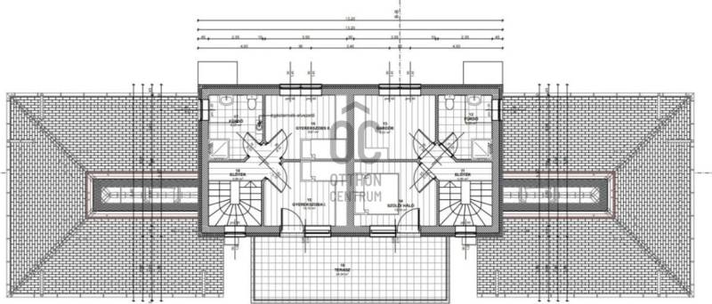
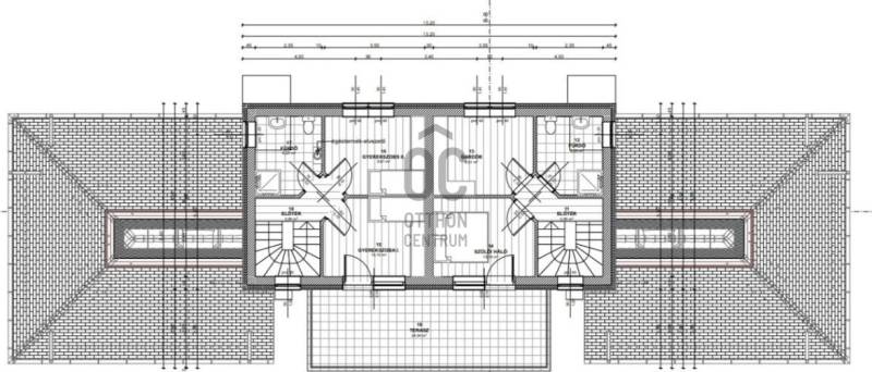
Siófok belvárosában új sorház jellegű lakások leköthetők, garázzsal!Olyan otthonról álmodik, ahonnan jó érzés reggelente útnak indulni és ahová boldogító hazatérni? Amelyben hosszú távon is fantáziát lát?Ezek a sorház jellegű lakások Siófok Belvárosában pont ilyenek.Újonnan épülő lakóparkban eladó sorházi lakások!Lakás 105 nm+ garázs+ 160 nm saját kert!MEGBÍZHATÓ ÉPÍTTETŐ SZÁMOS REFERENCIÁVAL RENDELKEZIK!ÁR: 120 000 000 Ft+ 5% ÁFAMost csapjon le rá!Fizetés ütemezés szerint!Várom érdeklődését a hét minden napján!Siófok,#belváros,#sorház jellegű lakás,# garázs,#,kert,#új,#Projekt bemutatásaOlyan otthonról álmodik, ahonnan jó érzés reggelente útnak indulni és ahová boldogító hazatérni? Amelyben hosszú távon is fantáziát lát?Ezek a sorház jellegű lakások Siófok Belvárosában pont ilyenek.Újonnan épülő lakóparkban eladó sorházi lakások!Lakás 105 nm+ garázs+ 160 nm saját kert!MEGBÍZHATÓ ÉPÍTTETŐ SZÁMOS REFERENCIÁVAL RENDELKEZIK!Most csapjon le rá!Fizetés ütemezés szerint!Várom érdeklődését a hét minden napján!

Somogy megye, Siófok
 

Ingatlan adatai
Irányár: 126 000 000 Ft
Típus: ház
Kategória: eladó
Alapterület: 105 m2
Fűtés: gáz (cirko)
Állapota: új
Szobák száma: 4
Építés éve: 2025
Szintek száma: -
További adatok
Telekterület: 160 m2
Kert mérete: 160 m2
Erkély mérete: 25 m2
Felszereltség: -
Parkolás: -
Kilátás: -
Egyéb extrák:  
-
Hirdető adatai
Hirdető neve: Otthon Centrum
Kapcsolattartó: Horváthné Virág Tímea
Hirdető telefonszáma: +36 70 469 3981
Honlap: -

Üzenetet küldhet a hirdetőnek:
Az Ön neve:
Az Ön e-mail címe:
Üzenet: