Részletes leírás
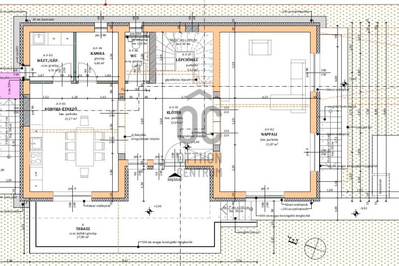
Első tulajdonosát keresi Siófok Fokihegyen családi házas övezetben egy 2 szintes netto 215 nm es új családi ház.A házhoz 398 nm telekrész tartozik.Az ingatlan megtervezésekor a beruházó nagy hangsúlyt fektetett az élhető tágas terekre, a fényviszonyok maximális kihasználására.A kivitelezés során a legkorszerűbb építőanyagok kerülnek felhasználásra, ami a legmagasabb elvárásoknak is megfelel.A ház fűtéséről, hűtéséről és melegvíz ellátásáról két db 8 kW névleges teljesítményű Stiebel levegő-víz hőszivattyú gondoskodik, a hőleadás padlófűtéssel és a közös használatú helyiségekben Split hűtő- fűtő klímával történik.A ház aljában több helyiségből álló 90 nm tároló kapott helyet, melyből akár egy önálló lakrész is kialakítható.Az ingatlan beosztása:földszint:- tágas előtér 16 nm- délnyugati tájolású hangulatos nappali 32 nm- nyugati tájolású konyha étkező 21,2 nm- kamra- háztartási helyiség- mosdó- 28 nm teraszemelet:- 2 db 13 nm es hálószoba- 1 db 26 nm es szülői háló gardróbbal- 2 db fürdőszoba- közlekedőAz ingatlan főbb jellemzői:- minőségi anyagfelhasználás- Loxon okos otthon, mely távolról vezényli a ház teljes működését- elektromos autótöltési lehetőség- elektromos kapu- automata öntözőrendszer- 3 rétegű 7 kamrás üvegezés RAL beépítési móddal- Velux tetőablakok napelemes vezérléssel, redőnnyel szerelve- emeletenként wifi erősítőpontok- helyiségenként TV -internet kiállás- 3x 25 A- 30 cm vastag falazat + 15 cm grafitos hőszigetelés- gránit párkányok- antracit színű Terrán betoncserép- mészkőburkolatok a homlokzaton- beosztásának köszönhetően körbenapozott tágas terek- jól átgondolt tervezés- választható burkolatok 8 000 ft/nm ig- napelemes előkészítés- riasztó- elektromos redőny, szúnyogháló- 2 db pergolás gépkocsibeállóAmennyiben saját maga és a családja számára egy élhető, színvonalas és alacsony fenntartási költségekkel bíró állandó otthont keres, itt megtalálja.Az ingatlan 500 méteres körzetében iskola, óvoda, bevásárlási lehetőségek, kórház, gyógyszertár megtalálható.A Balaton part 10 perces sétával elérhető.Az ingatlan előre egyeztetett időpontban a hét bármely napján megtekinthető.

Somogy megye, Siófok
 

Ingatlan adatai
Irányár: 179 000 000 Ft
Típus: ház
Kategória: eladó
Alapterület: 215 m2
Fűtés: -
Állapota: új
Szobák száma: 5
Építés éve: 2024
Szintek száma: -
További adatok
Telekterület: 398 m2
Kert mérete: 398 m2
Erkély mérete: -
Felszereltség: -
Parkolás: -
Kilátás: -
Egyéb extrák:  
-
Hirdető adatai
Hirdető neve: Otthon Centrum
Kapcsolattartó: Harsányi Bali Erzsébet
Hirdető telefonszáma: +36 70 412 3666
Honlap: -

Üzenetet küldhet a hirdetőnek:
Az Ön neve:
Az Ön e-mail címe:
Üzenet: