Részletes leírás
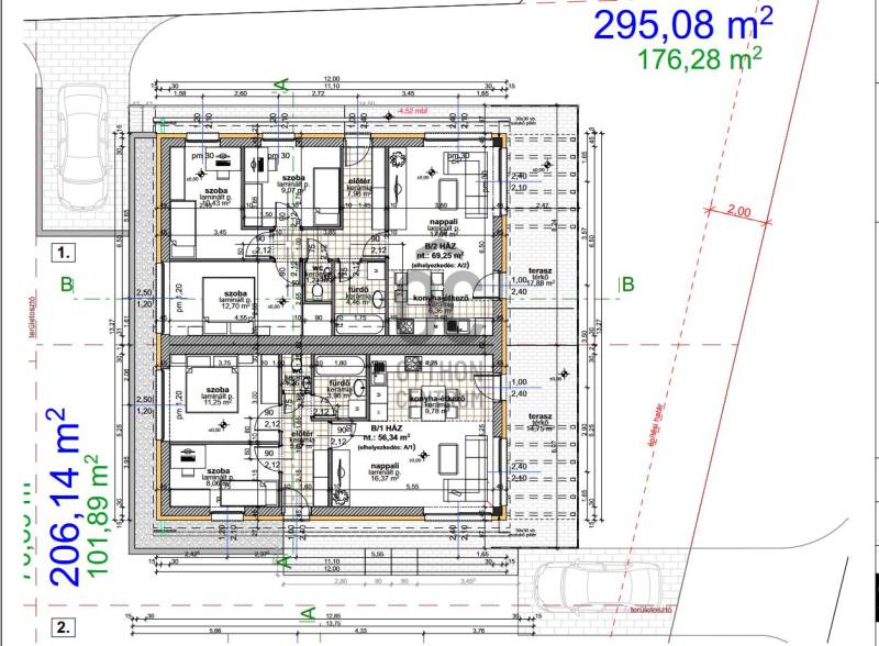
ELKEZDŐDÖTT AZ V.ÜTEM ÉPÍTÉSE!ALACSONY REZSIKÖLTSÉGŰ ÚJÉPÍTÉSŰ HÁZAK TESKÁNDON ❗❗❗KORSZERŰ ÚJÉPÍTÉSŰ HÁZAK TESKÁNDON❗❗❗Megvásárlásra kínálok kertkapcsolatos, 3 szoba+ nappalis, új építésű, ingatlanokat, Zalaegerszegtől mindössze 3 km-re, Teskándon épülő lakóparkban!❗Alacsony energiaigényű, családi ház jellegű, örök-panorámás társasházi lakások, 2026.I. negyedévi átadással!❗Fűtés-hűtés: modern hőszivattyús rendszer levegő-levegő kivitelben, akár okos telefonról működtethető!❗Elektromos üzemű \"okosbojler\", 80 literes kivitelben gondoskodik a melegvíz ellátásról.Lakásonként külön vízmérő órával.A vételár tartalmazza a gépkocsibeállót!Jogosultság esetén új építésű CSOK és kedvezményes hitel, akár 10+15 M Ft igénybe vehető, melynek teljes lebonyolítását vállaljuk!Szintén jogosultság esetén ÁFA visszaigényelés!Ha időben lefoglalja, van mód belső változtatásokra!Ne maradjon le róla!!!Az ingatlanok típusterv alapján több méretben épülnek.Nappali + 2 szobástól - nappali + 4 szobásig.Nettó 56 m2-től, 83 m2-ig.Minden lakáshoz saját udvar, terasz és gépkocsi beálló tartozik.2 szoba+ nappali 56 nm: 53 500 000.- Ft3 szoba+ nappali 69 nm: 63 500 000 Ft4 szoba+ nappali 82 nm:79 500 000.-FtBővebb felvilágosításért hívjon bizalommal, továbbá lehetőség van igény szerint előre egyeztetett időpontban helyszíni bejárást tartani, ahol meg tudja tekinteni a már elkészült és még át nem adott házakat.Irodánk teljes körű, díjmentes szolgáltatást nyújt kereső ügyfeleinknek, amennyiben Önnek hitelre van szüksége, segítünk! Szakszerű tanácsadással, hitel ügyintézéssel, energetikai tanúsítvány elkészítésével és kedvező díjszabású ügyvéddel nyújtunk segítséget!

Zala megye, Teskánd
 

Ingatlan adatai
Irányár: 63 500 000 Ft
Típus: ház
Kategória: eladó
Alapterület: 69 m2
Fűtés: -
Állapota: új
Szobák száma: 3
Építés éve: 2025
Szintek száma: -
További adatok
Telekterület: 400 m2
Kert mérete: 400 m2
Erkély mérete: 15 m2
Felszereltség: -
Parkolás: -
Kilátás: -
Egyéb extrák:  
-
Hirdető adatai
Hirdető neve: Otthon Centrum
Kapcsolattartó: Taar Ottó
Hirdető telefonszáma: +36 70 716 9556
Honlap: -

Üzenetet küldhet a hirdetőnek:
Az Ön neve:
Az Ön e-mail címe:
Üzenet: