Részletes leírás
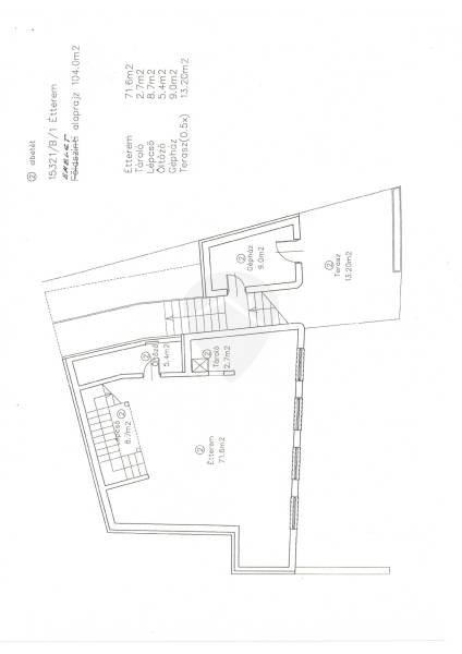
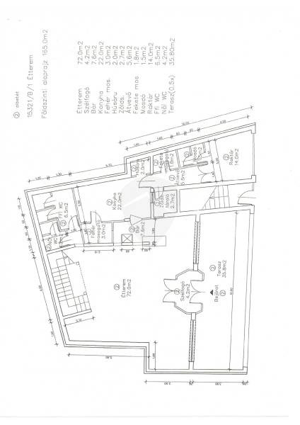
Eladó Befektetésnek is kiváló ingatlant kínálok akár hosszú távú bérlővel.Alkalmas irodának bemutatóteremnek cégközpontnak üzlethelyiségnek.Eladó a II. kerületben Szemlőhegyen, forgalmas főúton, 269 nm-es, üzlethelyiség. 2007-ben teljes felújításon esett át. Budapest központjától 2 km-re található, 2 szintes utcafronti üzlethelyiség, kiválóan alkalmas irodaháznak, iroda bemutatóteremnek, méretű üvegportállal, panorámával, korszerű kivitelezéssel. Alkalmas irodának, cégközpontnak, bemutatóteremnek, vendéglátásra (étteremhez teljes felszerelés bútorzat biztosított) cégközpontnak, egészségügyi központnak, oktató központnak….Parkolás az ingatlan előtt lehetséges.Tömegközlekedéssel és gépkocsival is jól megközelíthető a Szépvölgyi vagy a Pusztaszeri útról, a 91, 291-es buszok megállója 300 m távolságra van.Az ingatlan tehermentes, céggel együtt vagy cég nélkül is megvehető.Jelenleg bérbe van adva, bérlővel vagy bérlő nélkül is megvásárolható.

Budapest, II.kerület
 

Ingatlan adatai
Irányár: 320 000 000 Ft
Típus: iroda
Kategória: eladó
Alapterület: 269 m2
Fűtés: -
Állapota: -
Szobák száma: -
Építés éve: 1990
Szintek száma: -
További adatok
Telekterület: -
Kert mérete: -
Erkély mérete: -
Felszereltség: -
Parkolás: -
Kilátás: -
Egyéb extrák:  
-
Hirdető adatai
Hirdető neve: Nagy Ingatlan Powered by RH
Kapcsolattartó: Nagy Zoltán
Hirdető telefonszáma: +36 70 628 7088
Honlap: -

Üzenetet küldhet a hirdetőnek:
Az Ön neve:
Az Ön e-mail címe:
Üzenet: