Részletes leírás
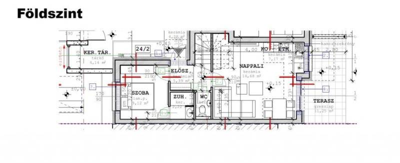
ÚJÉPÍTÉSŰ ENERGIAHATÉKONY LAKÁSOK LEKÖTHETŐK SAJÁT KERTTEL!Lakópark bemutatása:Tiszaújváros kertvárosi övezetében, új utcában kerül megépítésre a látványterveken látható, modern építészeti stílusban megtervezett, a fiatal város képéhez illeszkedő lakópark. A 26 db összközműves telek mérete 359nm - 487nm között van. A telkekre különböző alapterületű és elrendezésű kétlakásos társasházak épülnek. A lakások alapterületét, elosztását igényüknek megfelelően választhatják ki a vevők a tervrajzok közül. Az ingatlanok emelt szerkezet kész állapotban kerülnek értékesítésre, így az új tulajdonosok saját ízlésük, elképzelésük szerint alakíthatják otthonuk belsőjét. Külsőleg az épület teljesen befejezett, járdával, gépkocsibeállóval, kerítéssel kialakított, tereprendezett telken kerül átadásra. A lakóházak tervezésénél figyelembe vették, hogy 2021-től „közel nulla energiaigényű épületek” kaphatnak már csak használatbavételi engedélyt. Ennek köszönhetően gazdaságosan, minimális rezsivel fenntarthatók lesznek az ingatlanok.A társasházak építése már elkezdődött az összközműves telkeken.Az ingatlanok ára emelt szerkezetkész állapotban 780.000 Ft/m2 + 5% ÁFAA jelenleg épülő társasházakban 4 db különböző alapterületű és elrendezésű lakások közül választhat.Épület paraméterei: - 30-as porotherm téglából épült, 16 cm szigeteléssel- fűtését Bosch gázkazán biztosítja padlófűtésen keresztül- nyílászárók 3 rétegű, szigeteltek- aljzat, zárófödém szigetelt- 5 nm tároló az udvarról megközelíthető- két parkolóhellyel kialakított- alacsony rezsi költség várható az energiahatékony kivitelezésnek köszönhetően2. számú lakás paraméterei:- alapterülete: 68,57 nm- földszint elosztása: előszoba, nappali, konyha + étkező WC, zuhanyzó, szoba, terasz- emelet elosztása: szoba, közlekedő, fürdő, WC, 2 erkély- terasz mérete földszinten 11,25nm- erkélyek mérete 3,43nm, 3,67nm- telek teljes mérete, melyen 2 lakás helyezkedik el 385 m2Az eladásiár magába foglalja a telek, gépkocsibeálló, tároló, terasz értékét is. A vásárláshoz vállalt gyermekek után igényelhető a CSOK Plusz hitel. Ebben az esetben a vásárlás illetékmentessé válik. A leendő vevő önerős finanszírozás esetén a vételárat a beruházás megvalósulásával arányosan, részletekben fizeti meg. Támogatások és hitelek igénybevétele esetén a fennmaradó vételárat a választott pénzintézet folyósítja. Amennyiben CSOK Plusz nélkül vásárol újépítésű ingatlant továbbra is érvényben marad az illeték megfizetésénél a korábbi szabály, mely szerint 15MFt értékhatárig illetékmentes a vétel, az azt meghaladó összegre 4% illeték fizetendő.A látványtervek, alaprajzok, műszaki tartalom irodánkban megtekinthetők előzetes időpont egyeztetést követően. Kérem hívjon a felmerült kérdésekkel, szívesen állok rendelkezésére! Válasszuk ki közösen új otthonát! Vevőink részére szolgáltatásunk díjmentes és teljeskörű mind a vásárlás, mind a hitelfelvétel terén! Teljes körű Otthon Start, CSOK Plusz, Babaváró kölcsön, lakáshitel ügyintézéssel, lakáskasszával, fix, forint alapú kölcsön ajánlattal állunk ügyfeleink rendelkezésére! MIK azonosító: 3799533

Borsod-Abaúj-Zemplén megye, Tiszaújváros
 

Ingatlan adatai
Irányár: 56 158 830 Ft
Típus: lakás (tégla)
Kategória: eladó
Alapterület: 69 m2
Fűtés: egyéb
Állapota: új
Szobák száma: 3
Építés éve: 2021
Szintek száma: -
További adatok
Telekterület: -
Kert mérete: -
Erkély mérete: 18 m2
Felszereltség: -
Parkolás: -
Kilátás: -
Egyéb extrák:  
-
Hirdető adatai
Hirdető neve: MIK Magyar Ingatlan Központ
Kapcsolattartó: Dévald Éva
Hirdető telefonszáma: +36-70-6363321
Honlap: -

Üzenetet küldhet a hirdetőnek:
Az Ön neve:
Az Ön e-mail címe:
Üzenet: