Részletes leírás
CSOK Plusz igényelhető!Az ingatlan 30-as nútféderes tégla falazóelemből épül, fa födémmel.A tető antracit színű betoncserép héjazatot kap.A homlokzat 15 cm EPS, a padló 10 cm Austrotherm AT-N100-as, míg a vízszintes födém 25 cm ásványgyapot hőszigetelést kap.A nyílászárók hat légkamrás, háromrétegű üvegezéssel készülnek.A fűtésről monoblokkos hőszivattyús rendszer gondoskodik, padlófűtéssel.A műszaki tartalom az alábbi kereteken belül szabadon választható:Hidegburkolat: 3.000 Ft/m²-igMelegburkolat: 3.000 Ft/m²-igCsaptelepek: 15.000 Ft/dbKád vagy zuhany: 40.000 Ft/dbBeltéri ajtók: 35.000 Ft/dbElektromos rendszer kiépítése:Szobák: 3 konnektor/helyiségNappali: 4 konnektor + internet- és kábeltévé előkészítésKonyha: 6 konnektorVilágítás: helyiségenként 1 kiállásKábeltévé: előkészítveA megadott költségkeret feletti műszaki tartalom is választható, a különbözet finanszírozásával.Előkészítésre kerül a riasztórendszer és a kapunyitó elektronika is.Igény esetén komplett tervdokumentációt és részletes műszaki leírást biztosítunk.Várható átadás: 2026 első negyedévIngyenes hiteltanácsadás és CSOK Plusz ügyintézés!Bankfüggetlen hitelcentrumunk az összes hazai bank és hitelintézet ajánlatát versenyezteti az Ön érdekében — díjmentesen.- Egyedi, bankfiókban nem elérhető kamat- és díjkedvezmények- Hitelképesség előminősítés- Idő-, energia- és pénzmegtakarítás- Teljes körű ügyintézés

Jász-Nagykun-Szolnok megye, Jászberény
 

Ingatlan adatai
Irányár: 65 000 000 Ft
Típus: ház
Kategória: eladó
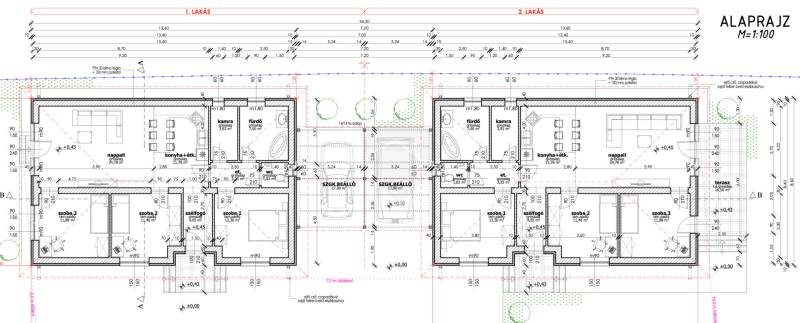
Alapterület: 93 m2
Fűtés: -
Állapota: új
Szobák száma: 4
Építés éve: 2025
Szintek száma: -
További adatok
Telekterület: 700 m2
Kert mérete: 700 m2
Erkély mérete: 19 m2
Felszereltség: -
Parkolás: -
Kilátás: udvari
Egyéb extrák:  
-
Hirdető adatai
Hirdető neve: Intor Ingatlan Powered By RH
Kapcsolattartó: Salétros Dániel
Hirdető telefonszáma: +36 70 412 5816
Honlap: -

Üzenetet küldhet a hirdetőnek:
Az Ön neve:
Az Ön e-mail címe:
Üzenet: