Részletes leírás
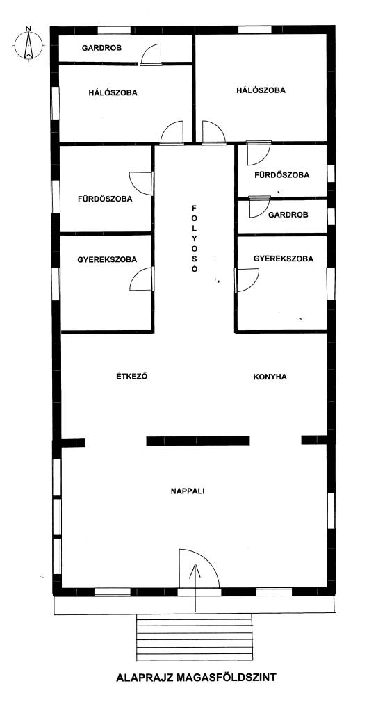
CSAK AZ IRODÁNK KÍNÁLATÁBAN! XXII. kerületben, Budafokon kínálunk eladásra egy FELÚJÍTÁS ALATT ÁLLÓ, nagy nappali + 4 szobás, 2 fürdőszobás, étkező-konyhás 214 m²-es lakóterű magasföldszinti CSALÁDI HÁZAT, melynek az alsó szintje plusz 110 m2, amely egy 647 m²-es telken helyezkedik el.A házba belépve egy tágas nappaliba érkezünk, innen tovább haladva található egy étkezős - konyha, beépített modern konyhabútorral. Széles folyosóról nyílnak a gyerek szobák, a nagy kádas fürdőszoba, és két nagy méretű hálószoba saját gardrób helyiségekkel. Az egyik hálószobához tartozik még egy zuhanyozós fürdőszoba WC-vel és egy gardrob szoba.A másik hálószobához is tartozik külön gardrob szoba.A ház alatti alsó szint 110 m2, ahol beépített konyha, kamra, kis szoba, zuhanyzós fürdőszoba WC-vel is kialakításra került, plusz egyéb tárolásra alkalmas terület is maradt.LÁSD AZ ALSÓ SZINT ALAPRAJZÁT !A ház ideális nagycsaládosoknak, de két generációnak is kényelmes tereket biztosít, a 214 m²-es lakótér, és az alsó szint helyiségei. LÁSD A LAKÓTÉR /magasföldszint/ HELYISÉGEINEK ELRENDEZÉSÉT AZ ALAPRAJZON !MŰSZAKI JELLEMZŐK: - Az épület az 1960-1970-es években épült vegyes falazattal. - 2024-2025-ben teljes körű felújításon esett át.- ennek részeként megtörtént a tetőcsere, vasbeton födém került kialakításra- a teljes gépészet és fűtésrendszer megújult - a nyílászárók cseréje is megtörtént, háromrétegű, hő- és hangszigetelő műanyag ablakok, új bejárati ajtó került beépítésre - a ház külső falaira 15 cm-es dryvit hőszigetelés került - a fűtés hőszivattyúval történik, minden helyiségben padlófűtéssel.PARKOLÁS: A kertben több autó számára térkövezett felszíni beálló biztosított.EXTRÁK: A házban 5 db hűtő-fűtő klíma található.KÖRNYEZET: Az ingatlan csendes, kertvárosias környezetben található, kiváló tömegközlekedéssel és közeli bevásárlási lehetőségekkel (ALDI, Campona, Tesco). A közelben óvoda, két tannyelvű iskola és gimnázium is működik.. Autóbusszal 15–20 perc alatt elérhető a 4-es metró kelenföldi végállomása. Budapest belvárosa pedig sétatávolságban lévő buszjáratokkal fél óra alatt megközelíthető.Az ingatlan ELŐRE EGYEZTETETT IDŐPONTBAN tekinthető meg – akár hétvégén is.KÉSZPÉNZES ÉRDEKLŐDŐK JELENTKEZÉSÉT VÁROM !FORDULJON HOZZÁM BIZALOMMAL, VÁROM HÍVÁSÁT, ÉRDEKLŐDÉSÉT!(G.I.)

Budapest, XXII.kerület
 

Ingatlan adatai
Irányár: 149 000 000 Ft
Típus: ház
Kategória: eladó
Alapterület: 214 m2
Fűtés: -
Állapota: felújított
Szobák száma: 5
Építés éve: 1968
Szintek száma: -
További adatok
Telekterület: 647 m2
Kert mérete: 647 m2
Erkély mérete: 64 m2
Felszereltség: -
Parkolás: -
Kilátás: kertre néző
Egyéb extrák:  
-
Hirdető adatai
Hirdető neve: GDN Ingatlanhálózat
Kapcsolattartó: Nyegrutz Tibor
Hirdető telefonszáma: +36-30-250-4987
Honlap: -

Üzenetet küldhet a hirdetőnek:
Az Ön neve:
Az Ön e-mail címe:
Üzenet: