Részletes leírás
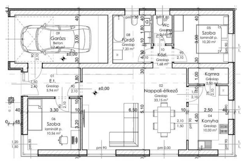
Eladó Nyíregyháza Nyírszőlős részén a Kollégium utcai lakóparkban 2025-ben épülő új amerikai stílusú A++ besorolású 2 szobás garázsos kertes családi ház. (K/1)Ára: 89.900.000 Ft.Az ingatlan alap méretei:- a telek mérete: 901nm,- a ház alapterülete: 101nm.Az épület hasznos alapterülete 100,8nm melyben található:- 2 szoba,- amerikai konyhás nappali,- kamra,- fürdőszoba,- WC,- közlekedő,- előtér,- garázs (17nm).Az amerikai stílusú új építésű családi ház várhatóan 8 hónapon belül kerül átadásra, mely korszerű hő takarékos építészeti megoldásokat alkalmazva készül el. A falazata 30-as téglából épül, mely 15 cm-es EPS homlokzati hőszigetelést kap. A födém szerkezete 15 cm-es ásványszálas hőszigetelésű lesz, így az egész épület energetikai szempontból A++ kategóriájú. Az épületben áram, víz, gáz és csatorna bekötésre kerül. Az épület padlófűtéssel, radiátoros fűtéssel vagy kérés esetén a kettő kombinációjával készül el, mely gáz cirkó kazánról fog működni. Ezen kívül még 2 db hűtő-fűtő klíma is rendelkezésre fog állni. A melegvíz ellátásról szintén a gáz cirkó kazán gondoskodik.Az ingatlan ideális választás lehet mindazok számára, akik új építésű, modern energiatakarékos otthont keresnek nyugodt kertvárosi környezetben.Fontos!Az ingatlan per és tehermentes, 2 gyerekes CSOK Plusz is igénybe vehető!Figyelem!Minőségi kivitelezés és választható belső burkolatok, szaniterek.2025-ös energetikai szabványoknak megfelelő modern megoldások.A belső elrendezés igény szerint módosítható.Ha felkeltette érdeklődését, hívja irodánkat bizalommal!Ha hitelre van szüksége éljen ingyenes, személyre szabott hitel ügyintézési szolgáltatásunkkal is.

Szabolcs-Szatmár-Bereg megye, Nyíregyháza
 

Ingatlan adatai
Irányár: 89 900 000 Ft
Típus: ház
Kategória: eladó
Alapterület: 101 m2
Fűtés: gáz (cirko)
Állapota: új
Szobák száma: 2
Építés éve: 2025
Szintek száma: -
További adatok
Telekterület: 901 m2
Kert mérete: 901 m2
Erkély mérete: 12 m2
Felszereltség: -
Parkolás: -
Kilátás: panorámás
Egyéb extrák:  
-
Hirdető adatai
Hirdető neve: GDN Ingatlanhálózat
Kapcsolattartó: Berki Katalin
Hirdető telefonszáma: +36-70-789-1998
Honlap: -

Üzenetet küldhet a hirdetőnek:
Az Ön neve:
Az Ön e-mail címe:
Üzenet: