Részletes leírás
Projekt1082 Budapest  BAROSS u. 106.Modern lakások Józsefváros fő utcájában, a Baross utcában.Az Ingatlan  praktikusan kialakított, emeleti erkélyes vagy  kertkapcsolatos lakásai minőségi és kényelmes életteret jelentenek családoknak és egyedülállóknak egyaránt. A karnyújtásnyira található Corvin Sétány és Corvin Plaza számos kikapcsolódási- és vásárlási lehetőséget, valamint szolgáltatást kínál: mozi, éttermek, borozók, élelmiszerboltok, pékségek, zöldséges, bank, posta, patika, szépségszalon, ruhaszervíz, mosoda, de akár fogorvos is megtalálható.Az Baross 106 Residence lakásainak hűtését-fűtését mennyezethűtés-fűtés panelek szolgáltatják, amelynek teljesítményét a zárófödémen elhelyezett hőszivattyú biztosítja. A rendszer megújuló energiát használ és a nagy méretű, mennyezetről leadott hősugárzó technológiának köszönhetően egyenletes hűtést-fűtést biztosít, amely emeli a lakások hőkomfort érzetét.A korábbi, egy területre irányított hűtő-fűtő rendszerektől eltérően az egyenletes hőleadás következtében a lakásban nem alakulnak ki hidegebb vagy melegebb pontok. A helyiségekben sem radiátorok sem klímaegységek nem kerülnek kiépítésre, így a szobák könnyebben berendezhetőek és a ház homlokzatát sem terhelik a külső klímaegységek.Az ingatlan 869 nm-en helyezkedik el 60%-os beépítettséggel. 8 szinten,  25 méteres építménymagasággal.A különböző szinteken elhelyezkedő udvar rész parkosításon esik át.A lakóegységben 40-44 lakás helyezkedik el 2077 nm-en változatos méretekben a  31 nm-től 123 nm-ig az 1 szobástól az 4 szobásig. A kertkapcsolatostól az erkélyesen át a hatalmas tetőteraszosig.A lakások kialakításánál kiemelten figyeltek a jó bútorozhatóságra, kényelmes lakótérre.  Az lakáson belül még választási lehetőség van a burkolatok, szobaszínek tekintetében.Várható birtokbaadás 2025 2. negyedév.A házban rendelkezésre állnak, korlátozott darabszámban a parkolóhelyek és a saját tárolók.A parkolóhelyek megközelítését két autólift teszi kényelmessé és megbízhatóvá. Fizetési ütemezés : 60-30-10 % készültségi foknak megfelelően. De alkalmazkodunk ügyfeleink egyéni igényeihez.

Budapest, VIII.kerület
 

Ingatlan adatai
Irányár: 49 000 000 Ft
Típus: lakás (újépítésű)
Kategória: eladó
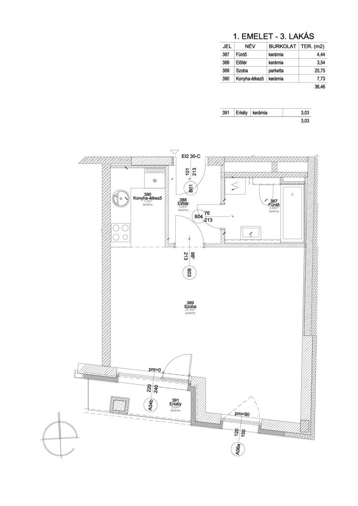
Alapterület: 27 m2
Fűtés: házközponti egyedi méréssel
Állapota: új
Szobák száma: 1
Építés éve: 2025
Szintek száma: 4
További adatok
Telekterület: -
Kert mérete: -
Erkély mérete: 6 m2
Felszereltség: -
Parkolás: -
Kilátás: kertre néző
Egyéb extrák:  
-
Hirdető adatai
Hirdető neve: GDN Ingatlanhálózat
Kapcsolattartó: Hangya Péter
Hirdető telefonszáma: +36-70-272-1496
Honlap: -

Üzenetet küldhet a hirdetőnek:
Az Ön neve:
Az Ön e-mail címe:
Üzenet: