Részletes leírás
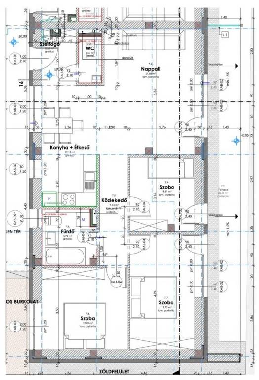
Kaposvár belvárosában kiemelkedően jó elhelyezkedéssel kínálok megvételre kifejezetten nívós, magas minőségű agyagok felhasználásával és igényesen kivitelezett új építésű társasházi lakásokat.A 30 lakásos, 4 szintes, liftes társasház Kaposvár belvárosában, a kifejezetten csendes, nyugodt Dési Huber István utcában, a kórház közelében került kivitelezésre. A zsákutca átmenő forgalomtól mentes, zölddel övezett, parkolókkal ellátott.A lakások tervezése átgondolt, a terek élhetőek, világosak, tágasak, a térérzet kifejezetten kellemes.Mindegyik ingatlanhoz terasz vagy erkély is kapcsolódik.A 7-es számú lakás nettó fűtött alapterülete 86 m2, melyhez egy 20 m2-es terasz is tartozik. A lakásban a tágas és világos amerikai konyhás nappalin túl 3 szoba, előtér, fürdőszoba, mellékhelyiség, és közlekedő került kialakításra.Az épület megvalósításánál a fő szempont a kiemelkedő minőség, a legkorszerűbb energetika és a felső kategóriás anyaghasználat volt.A lakások fűtéséről és hűtéséről hőszivattyúk gondoskodnak, a hőleadást padlófűtéssel, míg a hűtést magasoldalfali fancoilokkal oldották meg.A tetőn található nagy teljesítményű napelemrendszernek köszönhetően a lakások fenntartási- rezsi költsége kifejezetten alacsonyan tartható lesz majd.A lakások külső nyílászárói 4 ponton zárható, 3 rétegű Rehau nyílászárók, míg a tetszetős beltéri nyílászárók teljes felületükön tölgyfurnérral borítottak, a bejárati ajtók 8 ponton záródnak.A burkolatok választásánál a magas minőség és a mindenki számára tetszetős esztétikum dominált. A társasház minden fürdőszobájába Wellis prémium szaniterek kerültek beépítésre, amelyeket Wellis prémium szerelvényekkel láttak el.A társasház elektromos kapukkal zárt udvarán kialakított beállóhelyek vásárolhatóak a lakásokhoz.A zöld udvarrész parkosított, öntözőrendszerrel, kamerával és kültéri világosítással is ellátott. Az udvaron felépített különálló épület szolgál a kerékpárok és babakocsik tárolására.A helyi viszonylatban párját ritkító épületben található lakások befektetési célzattal is jó szívvel ajánlhatóak.További információért kérem keressen bizalommal!

Somogy megye, Kaposvár
 

Ingatlan adatai
Irányár: 88 329 000 Ft
Típus: lakás (újépítésű)
Kategória: eladó
Alapterület: 86 m2
Fűtés: -
Állapota: új
Szobák száma: 4
Építés éve: 2024
Szintek száma: -
További adatok
Telekterület: -
Kert mérete: -
Erkély mérete: 20 m2
Felszereltség: -
Parkolás: -
Kilátás: kertre néző
Egyéb extrák:  
-
Hirdető adatai
Hirdető neve: GDN Ingatlanhálózat
Kapcsolattartó: Zsobrák Zita
Hirdető telefonszáma: +36-30-328-5889
Honlap: -

Üzenetet küldhet a hirdetőnek:
Az Ön neve:
Az Ön e-mail címe:
Üzenet: