Részletes leírás
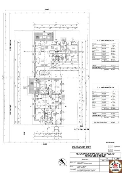
Tordason Gyúrói úton lévő Tordaskert lakóparkban (25 percre Budapesttől, M7-esen megközelíthető) meglévő on lévő kétlakásos lakóépület aszfaltos utcáról nyíló 555 m2-es saroktelken egyenként leválasztott saját használatú telken, nappali + 3 hálószobás, 130 m2-es, gépkocsitárolós lakóépület eladása leköthető novemberi beköltözéssel. Az épület építésére, CSOK és hitel felvehető.A lakóépület amerikai konyhás, + 3 hálószobával, fürdőszobával, háztartási helyiséggel, kamrával, fürdőszobával rendelkezik, nappaliból terasz összeköttetéssel. Az épülethez gépkocsitároló tartozik. Alaprajzi elrendezés tetszés szerint változtatható.Az épület összközműves, vizesrendszerű villanyfűtésű cirkó berendezéssel ellátott, a nappali padlófűtéses, többi helyiség radiátoros kivitelezésű.A ház, szerkezete 30 cm hőszigetelt blokktéglával kívül 15 cm grafitos dryvit hőszigeteléssel, 10 cm YTONG válaszfalak, pólyás fafödémmel ellátott, hőszigeteléssel 25 cm kőzetgyapot szigeteléssel rendelkezik a padlástér felé. A külső nyílászárók, három rétegű hőszigetelő üvegezésű műanyag szerkezetűek, bejárati ajtó, több ponton záródó, burkolatok a szobákba laminált parketta, a többi helyiségben járólap. Terasz csúszásmentes, fagyálló lapokkal, igény szerinti burkolat választható (2500 Ft/m2 árig). A hálószobák radiátorosak, többi helyiség padlófűtéses kialakítású. Fűtés rendszere kondenzációs kazánról működik. A kert tereprendezéssel, kerítéssel ellátott kivitelben kerül átadásra, másik lakástól növényzettel elválasztva.

Fejér megye, Tordas
Gyúrói út 

Ingatlan adatai
Irányár: 89 500 000 Ft
Típus: ház
Kategória: eladó
Alapterület: 130 m2
Fűtés: elektromos
Állapota: új
Szobák száma: 1+3
Építés éve: 2024
Szintek száma: -
További adatok
Telekterület: 555 m2
Kert mérete: 555 m2
Erkély mérete: 15 m2
Felszereltség: -
Parkolás: -
Kilátás: -
Egyéb extrák:  
-
Hirdető adatai
Hirdető neve: Fészekrakó Ingatlaniroda
Kapcsolattartó: Herczegné Maróti Györgyi
Hirdető telefonszáma: +36308892655
Honlap: -

Üzenetet küldhet a hirdetőnek:
Az Ön neve:
Az Ön e-mail címe:
Üzenet: