Részletes leírás
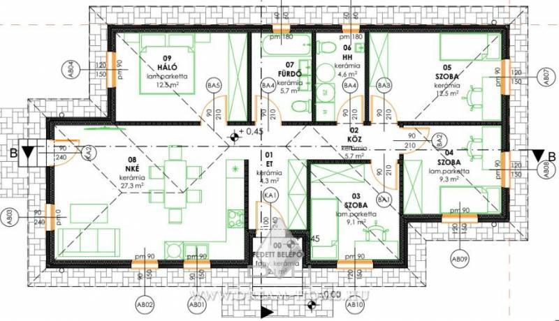
Kerekegyházán, 1080nm-es telken új, négyszobás téglaépítésű családi ház eladó!Kecskeméttől negyedórára, új kiosztású, rendezett övezetben, csendes, aszfaltos, összközműves utcában eladásra kínálok egy négyszobás, téglaépítésű családi házat. Az utcában jellemzően csak új építésű ingatlanok találhatóak. A ház nettó alapterülete 91nm. Építési módja tégla, a kiváló energetikáját hőszivattyús fűtési rendszer biztosítja, ezzel alapozva meg a rendkívül alacsony, gáz ár változástól független rezsiköltséget. Igény szerint napelem, illetve a gáz bevezetése is kérhető természetesen.A házat azoknak ajánlom szívből, akik nyugalomba szeretnének HAZAérni akár az agglomerációban való munkavégzés után; a hely atmoszférája egyedülálló.Tervezéskor a fő szempont a háromgyermekes családoknak minden kényelmet nyújtó OTTHON megalkotása volt. Ennek fényében a házban 3 gyermekszoba, 1 szülői háló található,külön háztartási helység a gépészetnek, fürdő zuhanyzóval és káddal, két mellékhelység, és egy kertkapcsolatos nappali-konyha-étkező amerikai stílusban.Iskola, óvoda, buszmegálló pár perc alatt megközelíthető.A nagy telekméret – és formája ideális a nagycsaládosoknak, dupla mobilgarázs, medence, kinti sütögető – mind megvalósítható egy élhető, átlátható élettér és zöld udvar mellett, úgy, hogy a család belső magánszférája és intimitása a szomszédok tekintete nélkül megmarad.Az áramellátás háromfázisú, ipari.A hirdetés gondolatébresztő hirdetés, a fenti ház kulcsátadása szerződéskötéstől számított 9-12 hónap. A tervek MÉG szabadon módosíthatók az Ön elképzelése szerint!Lehetőség van ÁRGARANTÁLT építési szerződésre is, egyedülállóan az irodánkban.További információkért kérjen időpontot, és egy személyes építési tájékoztatót (referenciaházak mutatásával) az irodánkban, Kecskemét, Kisfaludy u. 5, I. em. 109. alatt,CSOK, Babaváró, teljeskörű hitelügyintézéssel! Lévay Márton+36703190804

Bács-Kiskun megye, Kerekegyháza
Kerekegyháza 

Ingatlan adatai
Irányár: 52 900 000 Ft
Típus: ház
Kategória: eladó
Alapterület: 91 m2
Fűtés: -
Állapota: új
Szobák száma: 5
Építés éve: -
Szintek száma: -
További adatok
Telekterület: 1 080 m2
Kert mérete: 1 080 m2
Erkély mérete: -
Felszereltség: -
Parkolás: -
Kilátás: -
Egyéb extrák:  
-
Hirdető adatai
Hirdető neve: Dream-Home Ingatlaniroda és Új Ház Építő Centrum
Kapcsolattartó: Lévay-Bordi Regina
Hirdető telefonszáma: +36703425598
Honlap: -

Üzenetet küldhet a hirdetőnek:
Az Ön neve:
Az Ön e-mail címe:
Üzenet: