Részletes leírás
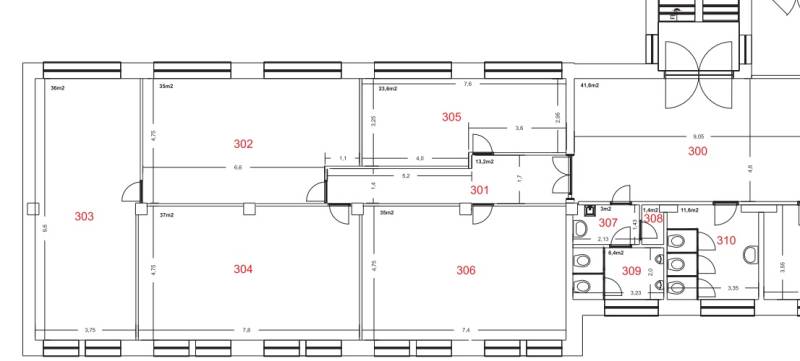
A feltüntetett bérleti díj netto, erre 27% ÁFA tevődik a számlán!XIV. kerület tömegközlekedéssel és autóval is könnyen megközelíthető régiójában,, a Fogarasi úton, a Tesco közelében kiadó helyiségek \"B\" kategóriás, zárt udvarban lévő irodaházban.23nm -től ( 28* 32* 35nm-esek- illetve van kettő egymásba is nyíló : összevontan ( 55-60nm közötti méret )Irodai, raktározás, rendezvények, oktatás,, táncterem, zenekari próba : este 6 után ..sokcélú hasznosítással.Közös teakonyha áll a bérlők rendelkezésére.Liftes ház, klímás helyiségek.Korlátozott számban bérelhetők autóbeállók a ház udvarában ( 50 EUR / hó)A helyiségek bérleti díja: 6,8 EUR /nm ( Ft-ban is szerződhetőRezsi : télen 4 EUR /nm *** nyáron 2,5 EUR / nmMinimum 12 hónapra szeretné kiadni a tulajdonos cég, rendezett hátterű, fizetőképes , leinformálható bérlőknek.Bővebb információért várom hívását!

Budapest, XIV.kerület
Fogarasi út 

Ingatlan adatai
Irányár: 95 000 Ft/hó
Típus: iroda
Kategória: kiadó
Alapterület: 35 m2
Fűtés: -
Állapota: -
Szobák száma: -
Építés éve: -
Szintek száma: -
További adatok
Telekterület: -
Kert mérete: -
Erkély mérete: -
Felszereltség: -
Parkolás: -
Kilátás: -
Egyéb extrák:  
-
Hirdető adatai
Hirdető neve: ArtsHome Ingatlaniroda
Kapcsolattartó: Murár Zsóka
Hirdető telefonszáma: 06-30-476-6997
Honlap: -

Üzenetet küldhet a hirdetőnek:
Az Ön neve:
Az Ön e-mail címe:
Üzenet: