Részletes leírás
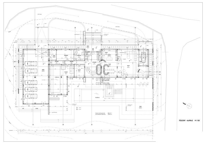
Fektess be a jövődbe egy igazán különleges ingatlan révén, amely Győrság csendes, mégis könnyen megközelíthető részén található. Ez az üzleti célú ingatlan nem csupán egy telket kínál, hanem egy lehetőséget is, hogy megvalósítsd álmaid vállalkozását. Az ingatlan alapterülete 1115 négyzetméter, míg a telek mérete 8392 négyzetméter, amely bőséges teret biztosít a kreatív ötleteid megvalósításához. A kiváló állapotban lévő ingatlan prémium kivitelezéssel készült, így azonnal használatba vehető, vagy akár egyedi tervezésű projektekkel továbbfejleszthető. A terasz és az erkély egyaránt 18 négyzetméteres, így ideális helyszínt biztosítanak a szabadtéri rendezvényekhez vagy a pihenéshez. A garázsban 10 autó számára van hely, ami különösen fontos lehet a vállalkozásod számára, hiszen a vendégeid és az ügyfeleid kényelmesen parkolhatnak. Az ingatlan panorámás kilátása pedig nemcsak a munkavégzést teszi inspirálóbbá, hanem a környék szépsége is hozzájárul a jó közérzethez. Győrság egy olyan település, ahol a modern életstílus és a természet közelsége találkozik. A környék csendes, biztonságos, ideális helyszín lehet a vállalkozásod számára. A közlekedés szempontjából is kedvező helyzetben van, hiszen a város központja könnyen elérhető autóval, és a tömegközlekedési lehetőségek is biztosítják a gyors hozzáférést a környező településekhez. A város infrastruktúrája jól kiépített, így minden szükséges szolgáltatás, mint például üzletek, éttermek és egészségügyi intézmények a közelben találhatóak. Ez az ingatlan nem csupán egy hely, ahol dolgozhatsz, hanem egy exkluzív lehetőség is a jövőbeni befektetéseidhez. Legyen szó akár irodáról, bemutatóteremről vagy más üzleti tevékenységről, a lehetőségek tárháza végtelen. A modern dizájn és a prémium kivitelezés garantálja, hogy a vállalkozásod sikeres alapokra épül. Ha kérdéseid vannak, vagy szeretnéd személyesen is megtekinteni ezt a különleges ingatlant, ne habozz kapcsolatba lépni velem. Bizalommal kereshetsz, hiszen az a célom, hogy megtaláld a számodra legmegfelelőbb ingatlant. Az üzleti lehetőségek tárháza vár rád Győrságon, ne maradj le róla!

Győr-Moson-Sopron megye, Győrság
 

Ingatlan adatai
Irányár: 457 000 000 Ft
Típus: kereskedelmi/ipari ingatlan
Kategória: eladó
Alapterület: 1 115 m2
Fűtés: -
Állapota: -
Szobák száma: -
Építés éve: -
Szintek száma: -
További adatok
Telekterület: -
Kert mérete: -
Erkély mérete: -
Felszereltség: -
Parkolás: -
Kilátás: -
Egyéb extrák:  
-
Hirdető adatai
Hirdető neve: Otthon Centrum
Kapcsolattartó: Mendel Ákos
Hirdető telefonszáma: +36 70 412 3496
Honlap: -

Üzenetet küldhet a hirdetőnek:
Az Ön neve:
Az Ön e-mail címe:
Üzenet: