Részletes leírás
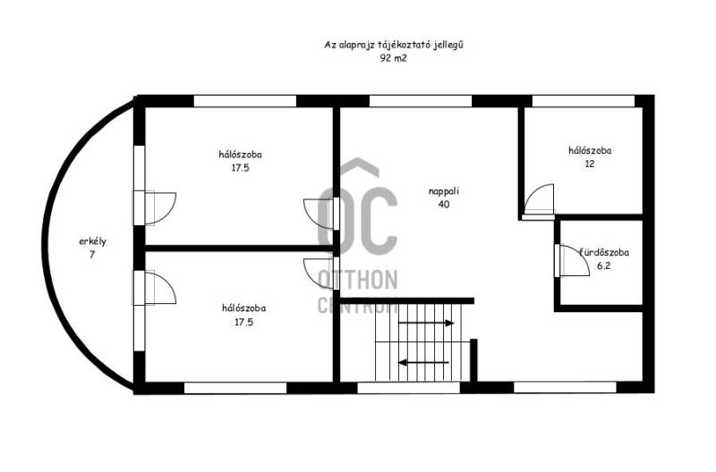
Családi házat keresel Gyöngyös belvárosában? Akkor ez az ingatlan neked szól! Az 184 nm alapterületű, 2 szintes, 7 szobás, 2 fürdőszobás ház egy 803 nm-es telken helyezkedik el, a Püspöki utcában. Az ingatlan 2004-ben B 30-as téglából épült, még nincs teljesen befejezve, így az új tulajdonosnak lehetősége van a saját ízlése szerint alakítani a lakást. Az ingatlan, akár 2 generáció számára is biztosít otthont.A tágas nappalik és a világos szobák kényelmes otthont biztosítanak a család számára. Az ingatlan központi elhelyezkedésének köszönhetően, a kertvárosi és belvárosi lakás előnyeit egyaránt élvezheted. A közelben található egy közlekedési csomópont, így kitűnő a közlekedés a városban. A környék felkapott és biztonságos, így ideális választás családok számára. Ha szeretnél egy olyan ingatlant, amely lehetőséget ad a saját elképzeléseid megvalósítására, akkor ez az ingatlan neked szól! Keress minket bizalommal, ha kérdéseid merülnének fel az ingatlannal kapcsolatban.

Heves megye, Gyöngyös
 

Ingatlan adatai
Irányár: 48 000 000 Ft
Típus: ház
Kategória: eladó
Alapterület: 184 m2
Fűtés: -
Állapota: felújítást igényel
Szobák száma: 7
Építés éve: 2007
Szintek száma: -
További adatok
Telekterület: 803 m2
Kert mérete: 803 m2
Erkély mérete: -
Felszereltség: -
Parkolás: -
Kilátás: -
Egyéb extrák:  
-
Hirdető adatai
Hirdető neve: Otthon Centrum
Kapcsolattartó: Nagy Zoltánné Zsani
Hirdető telefonszáma: +36 70 469 3286
Honlap: -

Üzenetet küldhet a hirdetőnek:
Az Ön neve:
Az Ön e-mail címe:
Üzenet: