Részletes leírás
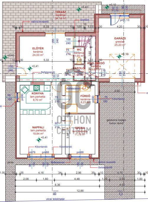
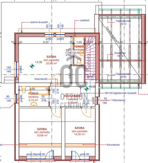
Hajdúszoboszlón kiváló minőségű és modern családi ház eladó. A felújítás és a korszerűsítés során számos kényelmi és energiahatékony funkcióval lett ellátva. Főbb jellemzők :-721 nm-es telek, sok fájával a kényelmes helyszín kertészkedéshez vagy szabadidős tevékenységekhez.-230 nm-es bruttó / 200 nm-es nettó alapterület (tégla és ytong falakat). Az ingatlan bővített és jól tervezett terekkel rendelkezik, amelyek kényelmes lakhatást biztosítanak. Az újragondolás, újratervezés keretében 90 nm új épületrész került kialakításra.-A ház több funkciónak is megfelel, amellett, hogy több generációs együttélésre is tökéletes, a felső szint vendég fogadásra is alkalmassá tehető, szükség esetén konyha is kialakítható.- A teljeskörű felújítás során a főfalakon kívül az ingatlan számos részét megújították, így modern és letisztult kinézetet kapott.-Az új tetőszerkezet Tondach cseréppel biztosítja az eső és időjárás elleni védelmet.-A Schüco műanyag nyílászárók és az alumínium, elektromos, távirányítású redőnyök hozzájárulnak az energiahatékonysághoz és a biztonsághoz.-A Mitsubishi hőszivattyú és a padlófűtés (szobánként egyedi termosztát) kényelmes és hatékony fűtési megoldást nyújtanak. -A meglévő kéménynek köszönhetően kandalló kialakítása lehetséges. -Az épület elektromos rendszere alkalmas napelemek telepítésére.-A 4 db Fischer, inverteles klíma segít a hőmérséklet szabályozásában a szobákban.-Az emeleti kertre néző nagy szoba osztható és galériázható.-A fürdőszobák és konyha bútorzata most készül.-Az ingatlanban 3 fürdőszoba található, amelyek kényelmet biztosítanak a lakók számára.- A 34 nm-es terasz kiváló helyszín a kikapcsolódásra, és lehetőség van jakuzzi kiépítésére.-A fűtött garázs (25nm) megközelítését az utcáról távirányítással működtethető úszókapu biztosítja, ami része az utcafronti 25m hosszú (lézervágott elemeket tartalmazó) kerítésnek.-Az új építésű garázs a jó helykihasználás érdekében galériázható, műhely sarok kialakítható.- A külső szigetelés hatékonyan segíti az ingatlan hőszigetelését.- A külső és belső rejtett LED világítások modern és hangulatos megjelenést biztosítanak.A hirdetésben szereplő információk a megbízótól kapott adatok alapján készültek, pontosságukért felelősséget nem vállalunk! Az alaprajz csak tájékoztató jellegű!Amennyiben vásárláshoz hitelre is szüksége van független hitel tanácsadónk ingyenesen tud Önnek segítségetnyújtani a legjobb konstrukciók kiválasztásában és a folyamat lebonyolításában.Irodánk kereső ügyfeleinknek teljes körű szolgáltatást nyújt, szakszerű tanácsadással, energetikaitanúsítvány elkészítésével, hitelügyintézéssel és profi ügyvédi segítséggel.Abban az esetben ha az ingatlan felkeltette érdeklődését keressen bizalommal!

Hajdú-Bihar megye, Hajdúszoboszló
 

Ingatlan adatai
Irányár: 159 900 000 Ft
Típus: ház
Kategória: eladó
Alapterület: 200 m2
Fűtés: -
Állapota: -
Szobák száma: 5
Építés éve: 1980
Szintek száma: -
További adatok
Telekterület: 721 m2
Kert mérete: 721 m2
Erkély mérete: -
Felszereltség: -
Parkolás: -
Kilátás: -
Egyéb extrák:  
-
Hirdető adatai
Hirdető neve: Otthon Centrum
Kapcsolattartó: Nagy Ádám
Hirdető telefonszáma: +36 70 469 3411
Honlap: -

Üzenetet küldhet a hirdetőnek:
Az Ön neve:
Az Ön e-mail címe:
Üzenet: