Részletes leírás
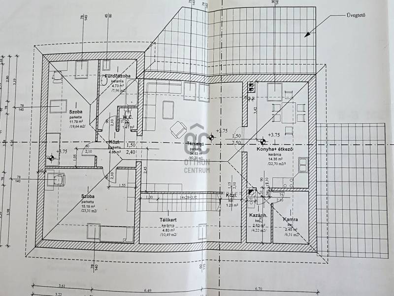
Fedezze fel ezt az egyedi adottságokkal rendelkező ingatlant Tégláson, ahol egy tágas, kétgenerációs családi otthon várja új lakóit. Ideális választás nagycsaládosok számára, akik a nyugalmat és a kényelmet keresik egy csendes környéken. Az ingatlan alapterülete 234 nm, valamint a különálló melléképület 114 nm , amelyet egy 1232 nm-es telek ölel körül.Ingatlan jellemzői:- tégla építésű, külső burkolattal- műanyag nyílászárók- gáz-cirkó fűtés padló valamint radiátoros hőleadással- vegyes tüzelésű kazán- klíma- télikert- minőségi fa konyhabútor- egyedileg asztalos által készített beltéri ajtók- gránit burkolatok- 2 nappali 5 szoba- szintenként fürdőszoba, különálló wc - pince- vadászterem különálló épületben 114 nmA házban összesen 7 szoba található, amely lehetőséget biztosít a család minden tagjának a saját tér kialakítására. A tágas nappali a középpontja a családi életnek, míg a 2 fürdőszoba praktikusan szolgálja a mindennapi kényelmet. A nappaliból közvetlen kijárat van a télikertbe, ahol fűtés is van. Az ingatlan jó állapotú és a gáz cirkó fűtés biztosítja a kellemes hőmérsékletet a hideg téli hónapokban is. Továbbá, a garázs egy autó számára biztosít helyet. A környék csendes, barátságos légkörével ideális választás a családok számára. A közeli közlekedési lehetőségek, mint a buszjáratok, könnyedén elérhetővé teszik a város többi részét, így a napi ingázás sem okoz gondot. Téglás városában számos bolt, iskola és játszótér található, amelyek mind hozzájárulnak a családi élet kényelméhez és élvezetéhez.Ez a tehermentes ingatlan egyedi tervezésével és kiváló adottságaival nemcsak egy otthont, hanem egy életstílust is kínál.A családi együttlétek, baráti összejövetelek és a nyugodt hétvégék helyszíne lehet a külön épületben kialakított vadászterem, ahol szintén kialakításra került fürdőszoba és különálló wc is. A melléképület alapterülete 114 nm. Melléképületben a fűtés kandallóval megoldott.Ne hagyja ki ezt a lehetőséget, hogy egy olyan ingatlanra tegyen szert, amely minden igényt kielégít! Amennyiben bármilyen kérdése van az ingatlannal vagy a vásárlási folyamattal kapcsolatban, bizalommal keressen!Az ingatlanról teljes körű videó felvétel készült, a megtekintése érdekében weboldalunkon keresse a H502742 regisztrációs számon vagy keressen telefonon közvetlenül.Téglás, kétgenerációs, egyedi, minőségi ingatlan

Hajdú-Bihar megye, Téglás
 

Ingatlan adatai
Irányár: 189 900 000 Ft
Típus: ház
Kategória: eladó
Alapterület: 234 m2
Fűtés: gáz (cirko)
Állapota: -
Szobák száma: 7
Építés éve: 2002
Szintek száma: -
További adatok
Telekterület: 1 232 m2
Kert mérete: 1 232 m2
Erkély mérete: -
Felszereltség: -
Parkolás: -
Kilátás: -
Egyéb extrák:  
-
Hirdető adatai
Hirdető neve: Otthon Centrum
Kapcsolattartó: Arany Zsuzsanna
Hirdető telefonszáma: +36 70 388 5441
Honlap: -

Üzenetet küldhet a hirdetőnek:
Az Ön neve:
Az Ön e-mail címe:
Üzenet: