Részletes leírás
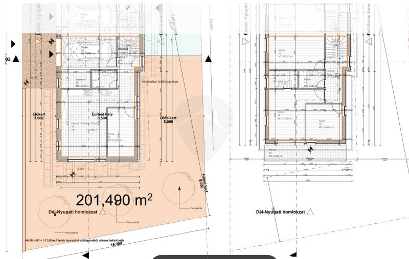
Gyál belterületi, jól megközelíthető részén kínálunk megvételre egy 137 m²-es, új építésű ikerházfelet, 201 m² saját telekrésszel.Az ingatlan kétszintes:Földszint – nappali + étkező, szoba, fürdő, garázsEmelet – 3 hálószoba, fürdő, 9 m²-es terasz-Hőszivattyús fűtés, padlófűtéssel minden helyiségben-Közvetlen átjárás a garázsból a házba-Remek elrendezés, csendes környék, kiváló infrastruktúra

Pest megye, Gyál
 

Ingatlan adatai
Irányár: 126 990 000 Ft
Típus: ház
Kategória: eladó
Alapterület: 137 m2
Fűtés: -
Állapota: új
Szobák száma: 5
Építés éve: 2025
Szintek száma: -
További adatok
Telekterület: 201 m2
Kert mérete: 201 m2
Erkély mérete: 9 m2
Felszereltség: -
Parkolás: -
Kilátás: kertre néző
Egyéb extrák:  
-
Hirdető adatai
Hirdető neve: Rock Home
Kapcsolattartó: Róth Kitti
Hirdető telefonszáma: +36 70 467 6839
Honlap: -

Üzenetet küldhet a hirdetőnek:
Az Ön neve:
Az Ön e-mail címe:
Üzenet: