Részletes leírás
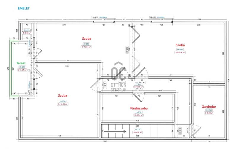
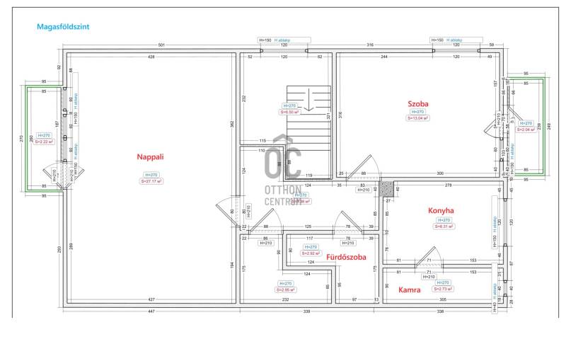
Zuglóban eladásra kínálok egy két lakószinttel rendelkező családi házat. A Bosnyák tér vonzáskörzetében, Alsórákoson elhelyezkedő házátlagos, felújítandó állapotú. Az alagsorban található egy garázs, mosókonyha és egy hobbiszoba. A magasföldszinten egy tágas nappali, egy hálószoba egy konyha és egy fürdőszoba wc-vel.A ház tetőterét a 80-s években építették be. Itt helyet kapott 4 hálószoba, egy fürdőszoba wc-vel és egy gardrobeszoba. A házban 3 évvel ezelőtt cserélték a kazánt, két évvel ezelőtt pedig a tetőfelújítás történt meg.A kert viszonylag kisebb méretű azonban pont akkora melyet kiválóan tudunk kikapcsolódásra, sütögetésre és gyerekekkel közös játékra használni. Várom hívását, szívesen bemutatom Önnek ezt a kiváló és csendes helyen lévő házat!

Budapest, XIV.kerület
 

Ingatlan adatai
Irányár: 169 000 000 Ft
Típus: ház
Kategória: eladó
Alapterület: 198 m2
Fűtés: gáz (cirko)
Állapota: felújítást igényel
Szobák száma: 5
Építés éve: 1955
Szintek száma: -
További adatok
Telekterület: 239 m2
Kert mérete: 239 m2
Erkély mérete: 14 m2
Felszereltség: -
Parkolás: -
Kilátás: -
Egyéb extrák:  
-
Hirdető adatai
Hirdető neve: Otthon Centrum
Kapcsolattartó: Deák Zsuzsanna
Hirdető telefonszáma: +36 70 716 8831
Honlap: -

Üzenetet küldhet a hirdetőnek:
Az Ön neve:
Az Ön e-mail címe:
Üzenet: