Részletes leírás
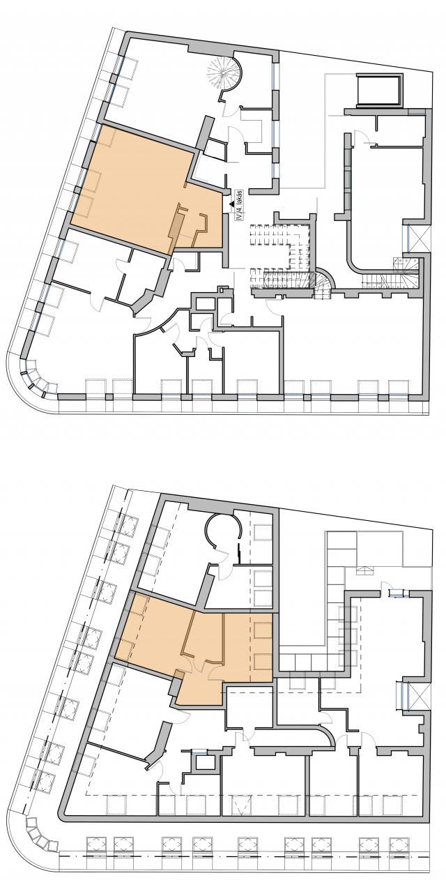
V. kerület Belvárosi részén, napfényes, magasemeleti luxus lakások kerülnek kialakításra a kivitelezéssel párhuzamosan pedig az épület korhűen megújul és egyidejűleg modern felvonó kerül beépítésre. Összesen 105m2 lakóterülettel rendelkezik ez a remek kéthálószobás, tetőteraszos ingatlan. A bejárati szinten a konyha nappali mellett egy vizes helyiség kerül kialkaításra, a hálószobák az élettértől jól elszeparálva az emeleten kapnak helyet a mellékhelyiségekkel, innen jutunk fel a privát 28m2-es tetőteraszra mely kizárólag ennek a lakásnak a kényelmét biztosítja. Az előrelátó tervezésnek köszönhetően nem lakószobából megközelíthető a tetőterasz így valóban szerves része lehet a lakásnak. A mellékelt látványtervek csupán egy, a számtalan megvalósítható lehetőség közül, jelen stádiumban még 100%-ban lehetséges a leendő tulajdonosok elképzeléseinek megvalósítása.• ÉS MIÉRT ÉPP EZ A LEGMEGFELELŐBB VÁLASZTÁS?• Kitűnő lokáció a az ország legjobb egyetemei közelében• Remek tömegközlekedési lehetőségek• Őrzött mélygarázs a közelben• Minden egyes lakás, intim, napsütötte terasszal rendelkezik• Műemlék környezet a klasszikus Belvárosban• Igény szerinti 100%-ban testre szabott lakások• Igény esetén extra felszereltség a minőségi lakhatásértA 87m2-es értékesítési alapterület tartalmazza a nettó 68m2-es lakótéren felül 190cm alatti területek (9m2) és a terasz (28m2) területének 50%-át.Külön megbízás keretében a megvásárolt lakás teljes bútorozását és felszerelését vállaljuk a bérbeadással és utógondozással együtt így Önnek csak a bérleti díj beérkezését kell ellenőriznie.Szükség esetén banksemleges hiteltanácsadással tudjuk segíteni a kiszemelt lakás megvásárlását.

Budapest, V.kerület
Belvárosi Loft 

Ingatlan adatai
Irányár: 210 000 000 Ft
Típus: lakás (tégla)
Kategória: eladó
Alapterület: 105 m2
Fűtés: gáz (cirko)
Állapota: új
Szobák száma: 2+1
Építés éve: -
Szintek száma: 4
További adatok
Telekterület: -
Kert mérete: -
Erkély mérete: 28 m2
Felszereltség: -
Parkolás: -
Kilátás: utcai
Egyéb extrák:  
-
Hirdető adatai
Hirdető neve: REGION Ingatlaniroda / Region Immo Kft
Kapcsolattartó: Andrássy Róbert
Hirdető telefonszáma: +36703675765
Honlap: -

Üzenetet küldhet a hirdetőnek:
Az Ön neve:
Az Ön e-mail címe:
Üzenet: