Részletes leírás
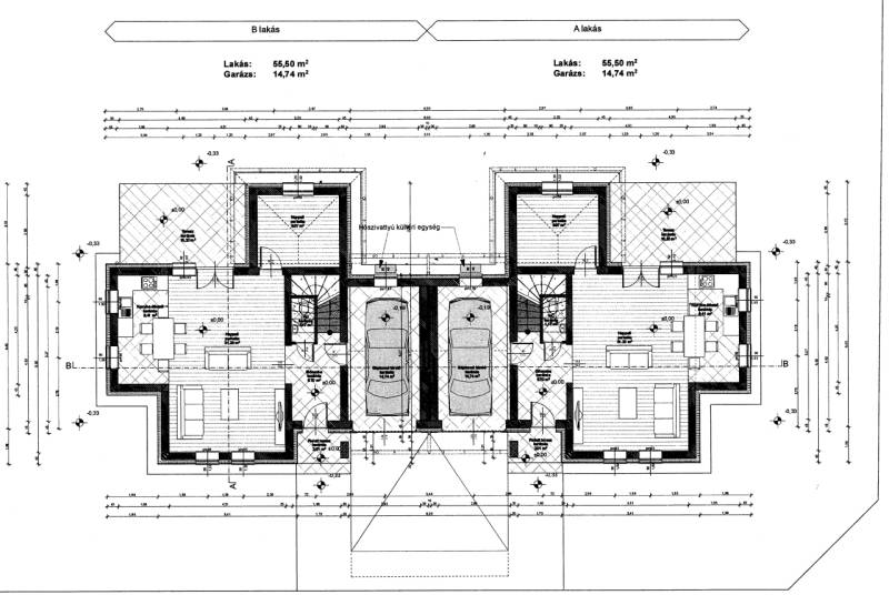
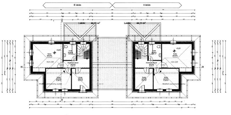
LEGYEN ÖN az ELSŐ, még TUD VÁLASZTANI a GARÁZZSAL ÉRINTKEZŐ, MOST ÉPÜLŐ \"A\" és \"B\" LAKÓHÁZAK közül!XXII. kerület Óhegy csendes kertvárosias környezetében, összesen 1000 m2-es telken 2 db, 130 m2-es 5 szobás, fürdőszobás nagy teraszos, garázzsal rendelkező \"A\" és \"B\" jelű házat kínálunk megvételre.Mindkét ház ALAPRAJZA, TELEK MÉRETE, KIVITELEZÉSE AZONOS !A megvételre kínált: \"A\" és \"B\" jelű ingatlan KULCSRAKÉSZ ÁRA: 189,9 millió FtAz ingatlanok saját 500 m2-es szeparált telek résszel, egyállásos garázzsal, térkövezett kocsibeállóval, külön mérőórákkal rendelkeznek.A két lakás két épület tömbben helyezkedik el.Az épületeket két garázs köti össze.Helyiségei:FÖLDSZINTEN: előszoba (5,7 m2), WC kézmosóval, nappali (31,25 m2), konyha-étkező (8,40 m2), vendégszoba (8 m2).EMELETEN közlekedő(9,3 m2), fürdőszoba(5 m2), 3 hálószoba (17,7 m2, 12,2 m2 és 8,5 m2 méretűek.)A MÉRETEKET, ELRENDEZÉST LÁSD AZ ALAPRAJZOKON !MŰSZAKI TARTALOM:-Porotherm 30-as falazat,15 cm külső homlokzati szigetelés-25 cm tetőszigetelés,12 cm lábazat xps szigetelés-két szint között E gerendás vasbeton födém-Leier beton cserép,csatorna rendszerrel-3 rétegű üvegezéssel ellátott, műanyag nyílászárók-elektromos alumínium redőnyök, szúnyoghálóval-minden helyiségben padló fűtés, helyiségenként szabályozható osztógyűrűvel-Hőszivattyú 10 KWh-Vízmelegítő hibrid 100 L-Villamos energia :1x32 A, 1x25 A H tarifás villanyóraÁtadás előtt, tereprendezésre kerül sor, építési törmelék elszállítása,talaj kiegyenlítés.TERVEZETT ÁTADÁS IDŐPONTJA : 2026. I. negyedévA HÁZAK ÖNÁLLÓ MÉRŐÓRÁKKAL, HASZNÁLATBAVÉTELI ENGEDÉLLYEL, TÁRSASHÁZ ALAPÍTÓ OKIRATTAL és H-TARIFÁS VILLANYÓRÁVAL kerülnek átadásra.A környék lokációja jó, közelben iskola, óvoda, orvosi rendelő, bevásárlási lehetőség található.Az ingatlan megtekintése előre egyeztetett időpontban lehetséges.VÁROM HÍVÁSÁT, TOVÁBBI KÉRDÉSEIVEL kapcsolatosan JELENTKEZÉSÉT!(G.I.)

Budapest, XXII.kerület
 

Ingatlan adatai
Irányár: 189 900 000 Ft
Típus: ház
Kategória: eladó
Alapterület: 130 m2
Fűtés: -
Állapota: új
Szobák száma: 5
Építés éve: 2025
Szintek száma: -
További adatok
Telekterület: 500 m2
Kert mérete: 500 m2
Erkély mérete: 500 m2
Felszereltség: -
Parkolás: -
Kilátás: kertre néző
Egyéb extrák:  
-
Hirdető adatai
Hirdető neve: GDN Ingatlanhálózat
Kapcsolattartó: Nyegrutz Tibor
Hirdető telefonszáma: +36-30-250-4987
Honlap: -

Üzenetet küldhet a hirdetőnek:
Az Ön neve:
Az Ön e-mail címe:
Üzenet: