Részletes leírás
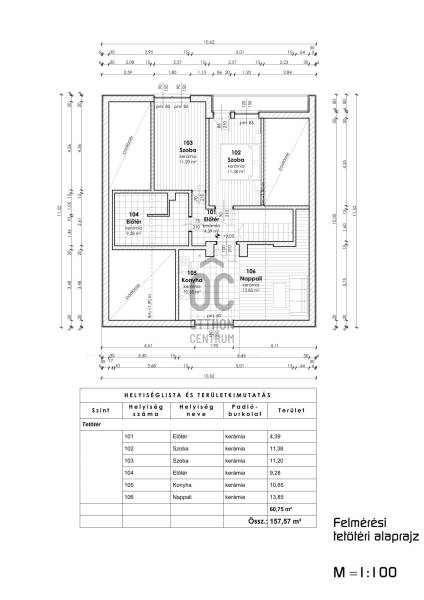
Somogy megyében, Marcali déli csendes, barátságos városrészében kínáljuk eladásra ezt a két szintes, téglaépítésű, szigetelt családi házat eladásra, amely két külön lakrészből áll.3 % Otthon Start igénybe vehető!A két szinten található 157 nm alapterület ideális választás lehet nagyobb családok számára, több generáció együttélésre . A 4 szoba+ 2 nappali elrendezés maximális kényelmet biztosít. A házhoz tartozó 1.397 nm telek nagyobb családi összejövetelek helyszínéül szolgálhat és gyermekek szabad játékának is tökéletes teret ad. Az épület részleges felújítása megkezdődött. Fűtése gáz cirkó rendszerrel és vegyes tüzelésű kazánnal , hűtése pedig klímával biztosított. A környék csendes és biztonságos, ideális választás a gyermekes családok számára. Az ingatlan fontosabb jellemzői: - 80-as években épült 2 szintes családi ház - masszív, tégla épület, kiváló statikai állapot, külső 6 cm vastag szigeteléssel- 157 nm hasznos alapterület - a két külön bejáratú lakrész- helyiségek: 2 fürdőszoba és 2 konyha, 2 nappali és 4 hálószoba, amely ideális nagy családnak vagy többgenerációs együttéléshez- tágas teraszok teszik élhetőbbé az épületet ,- központi fűtés ( vegyes ás gázkazán), gazdaságos üzemeltetés- eredeti fa nyílászárók, az emeleten részen részben műanyag ablakok már cserélve lettek- cseréptető- ipari áram-a gondozott telek, 1.397 nm nagyságú- számtalan gyümölcsfa növeli a kert értékét ( őszibarack, dió, körte, alma, szilva)- kertészkedésre, veteményes kialakítására, BIO gazdálkodásra is kiváló lehetőség - pince és több melléképület áll rendelkezésre (dupla garázs, tárolók, műhely, kazánház)Nyugodt, csendes környék, kiváló lakóhely. Ez a ház kényelmes, praktikusan kialakított otthon, amely ideális nagyobb családoknak, vállalkozásra vagy akár bérbeadásra is.Marcali városa számos lehetőséget kínál, a város központja mindössze néhány percnyi távolságra található, ahol üzletek, iskolák és egészségügyi intézmények várják. Az ingatlan befektetési szempontból is kedvező, hiszen a város fejlődése és a környék infrastruktúrájának folyamatos bővítése biztosítja az értékállóságot. Ne hagyja ki ezt a lehetőséget! Lépjen kapcsolatba velünk a megtekintésért és további információért!Az adatok tájékoztató jellegűek.

Somogy megye, Marcali
 

Ingatlan adatai
Irányár: 51 900 000 Ft
Típus: ház
Kategória: eladó
Alapterület: 157 m2
Fűtés: gáz (cirko)
Állapota: -
Szobák száma: 6
Építés éve: 1985
Szintek száma: -
További adatok
Telekterület: 1 397 m2
Kert mérete: 1 397 m2
Erkély mérete: 30 m2
Felszereltség: -
Parkolás: -
Kilátás: -
Egyéb extrák:  
-
Hirdető adatai
Hirdető neve: Otthon Centrum
Kapcsolattartó: Schwarcz-Szajkó Judit
Hirdető telefonszáma: +36 70 412 5636
Honlap: -

Üzenetet küldhet a hirdetőnek:
Az Ön neve:
Az Ön e-mail címe:
Üzenet: