Részletes leírás
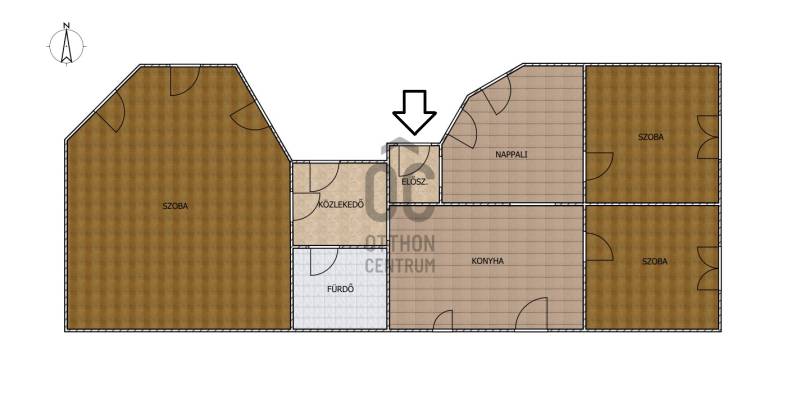
Nádasdladányban 127,46 m2-es, nappali+3szobás, FELÚJÍTOTT CSALÁDI HÁZ ELADÓ Ingatlan jellemzői:- 1159 m2-es telek- vegyes falazat (vályog, tégla)- fagerendás födémszerkezet- ácsolt fa tetőszerkezet, betoncserép fedéssel- hőszigetelt üvegezésű műanyag nyílászárók- villanyhálózat felújítva- teljes vízhálózat és csatorna hálózat cseréje megtörtént- a radiátotok csövezése elkészítve a falban és az aljzatban- meleg víz villanybojlerrel - gázcsonk a telken belül- mindenhol új burkolatot kaptak a helyiségek- 127 m2-en található nappali, konyha, 3 szoba, fürdőszoba, előszoba, közlekedő és egy galériaA faluban megtalálható gyógyszertár, orvosi rendelő, kisebb boltok, posta, általános iskola, óvoda.Várpalota 11 km-re, Veszprém és Székesfehérvár 25-25 km-re van. M7 felhajtó 15 perc, legközelebbi strandok a Balatonon 25-30 perc autóúttal elérhetőek.Ha további információk érdeklik vagy megtekintené a házat, hívjon.Ha a vásárláshoz a jelenlegi ingatlana eladására van szükség, akkor abban is szívesen együttműködöm Önnel!Amennyiben hitelre van szüksége, az Otthon Centrum az ország egyik legnagyobb és legmegbízhatóbb hitelközvetítőjeként, teljes körű és díjmentes hitel ügyintézéssel áll rendelkezésére.Kérje személyre szabott ajánlatunkat!

Fejér megye, Nádasdladány
 

Ingatlan adatai
Irányár: 59 500 000 Ft
Típus: ház
Kategória: eladó
Alapterület: 127 m2
Fűtés: -
Állapota: -
Szobák száma: 3
Építés éve: 1950
Szintek száma: -
További adatok
Telekterület: 1 159 m2
Kert mérete: 1 159 m2
Erkély mérete: -
Felszereltség: -
Parkolás: -
Kilátás: -
Egyéb extrák:  
-
Hirdető adatai
Hirdető neve: Otthon Centrum
Kapcsolattartó: Balogh Róbert
Hirdető telefonszáma: +36 70 469 3626
Honlap: -

Üzenetet küldhet a hirdetőnek:
Az Ön neve:
Az Ön e-mail címe:
Üzenet: