Részletes leírás
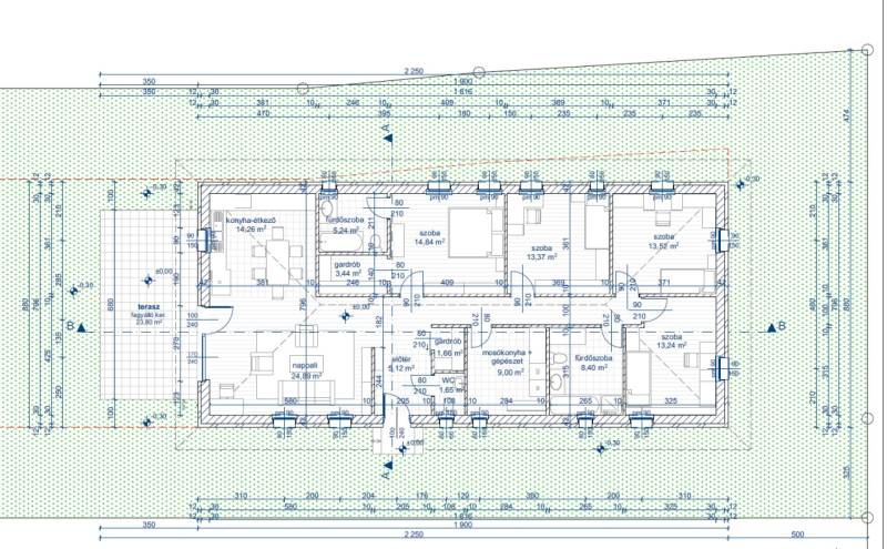
A XVII. kerület csendes, családi házas övezetében, az Emlék utca 58. szám alatt kínálom megvételre ezt a 641 m²-es telekre épülő, nettó 147 m²-es, modern és energiatakarékos új építésű családi házat, amelyhez egy 23,8 m²-es terasz is tartozik. A kivitelezést megbízható, több sikeres referenciával rendelkező kivitelező cég végzi, az ingatlan pedig kulcsrakészen kerül átadásra. A ház praktikus elrendezésének köszönhetően négy külön nyíló szoba és egy tágas amerikai konyhás nappali biztosítja a kényelmes mindennapokat, miközben a korszerű műszaki tartalom alacsony fenntartási költségeket garantál.Az épület Porotherm 30-as tégla falazattal, 14 cm-es grafitos homlokzati szigeteléssel és 30 cm vastag tetőszigeteléssel készül. A fűtést és a melegvizet 12 kW-os hőszivattyú biztosítja, a teljes ingatlanban padlófűtéssel, míg a hűtést oldalfali fancoil egységek látják el. A háromrétegű fehér nyílászárók motoros redőnnyel szerelve kerülnek beépítésre. A belső burkolatok és szaniterek választhatók:-csempe 8.000 Ft-ig 180 cm-es magasságig, a fölött 12.000 Ft/m² -fürdők padlóburkolata 8.000 Ft/m²-ig -minden helyiség parkettaburkolattal, alátéttel és szegéllyel 5.000 Ft/m²-ig-terasz burkolata 4.000 Ft/m²-ig -szaniterek összeghatára 350.000 Ft. -A szobánkénti három elektromos kiállás az ár részét képezi, további kiállások igény szerint 10.000 Ft + áfa díjon rendelhetők.Ez az ingatlan ideális választás mindazok számára, akik egy modern, praktikusan kialakított, magas műszaki tartalmú, alacsony üzemeltetési költségű, új építésű családi házra vágynak egy kiválóan megközelíthető, mégis nyugodt környéken.INGYENES hitel tanácsadás, CSOK Plusz - Otthon Start ügyintézés!BANKFÜGGETLEN hitelcentrumunk az összes elérhető bank és hitelintézet ajánlatát versenyezteti az Ön kedvéért, ráadásul DÍJMENTESEN.- Egyedi, bankfiókban nem elérhető kamat- és díjkedvezmények- Hitelképesség vizsgálat- Idő, energia és pénz megtakarítás- Teljes hivatali ügyintézésAmennyiben hirdetésem felkeltette az érdeklődését vagy egyéb információra van szüksége hívjon bizalommal!

Budapest, XVII.kerület
 

Ingatlan adatai
Irányár: 169 990 000 Ft
Típus: ház
Kategória: eladó
Alapterület: 159 m2
Fűtés: -
Állapota: új
Szobák száma: 5
Építés éve: 2025
Szintek száma: -
További adatok
Telekterület: 641 m2
Kert mérete: 641 m2
Erkély mérete: 24 m2
Felszereltség: -
Parkolás: -
Kilátás: kertre néző
Egyéb extrák:  
-
Hirdető adatai
Hirdető neve: GDN Ingatlanhálózat
Kapcsolattartó: Horváth Péter
Hirdető telefonszáma: +36-70-606-2990
Honlap: -

Üzenetet küldhet a hirdetőnek:
Az Ön neve:
Az Ön e-mail címe:
Üzenet: