Részletes leírás
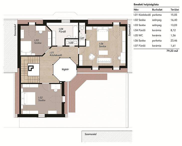
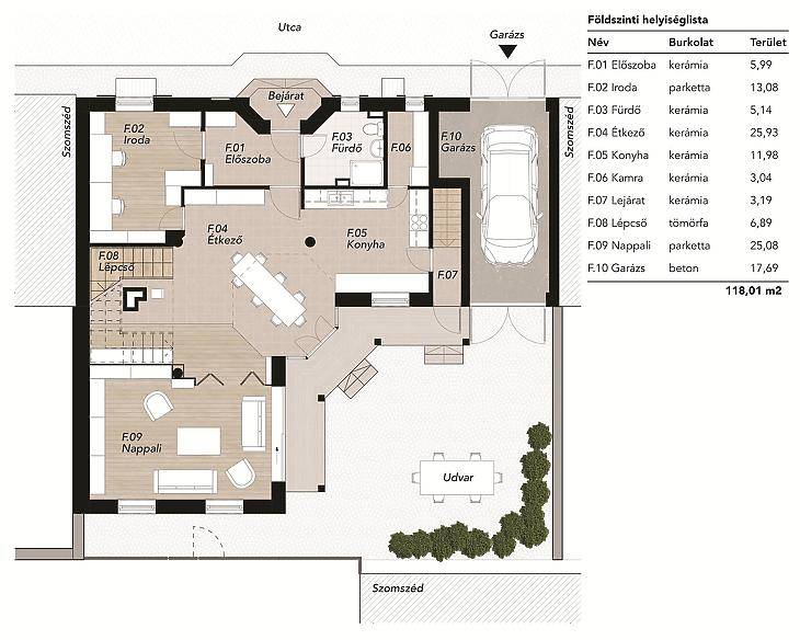
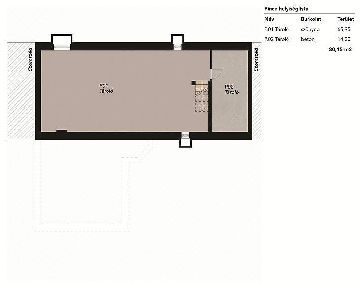
Eladásra kínálunk Dunakeszi városközponti részén, duplakomfortos, 197nm-es nagy terekkel rendelkező, világos közepes állapotú sorházat. Az alsó szinten, amerikai konyhás nappali, fürdőszoba, előszoba és egy hálószoba van, míg a felső szinten, két hálószoba, közlekedő, 2 db fürdőszoba külön 2 db WC található, így összesen 3 hálószoba, 3 fürdőszoba, és 3 WC van. A nappaliból és az étkezőből közvetlen kapcsolta nyílik a 25 nm-es fedett teraszra.A hálószobákban és a közlekedőkben hagyományos szalag parketta, a többi helyiségben hideg burkolat található.A nyílászárók fa típusúak, fűtésről kombi cirkó gondoskodik, radiátoros hőleadással, puffer tartállyal szerelve.A ház alatt 80 nm nagyságú normál belmagasság rendelkező, jól pakolható, vagy műhelynek használható pince helyezkedik el.A konyhabútor az ár részét képezi.A kertbe a házon kereszt, vagy a garázson keresztül tudunk hátra jutni, a garázs mind két oldalán garázs kapu van, így autóval áthaladásra is biztosított.A rendezett kert végében grillező található. Kérdésével, illetve megtekintési szándékával kérem keresse irodánkat.Az ingatlan hitelre is megvásárolható. Bankfüggetlen tanácsadóink, az ország összes pénzintézete közül gyorsan és gördülékenyen találja meg az Önnek legmegfelelőbb konstrukciót, egyedi kedvezményekkel. A hitel közvetítés díjmentes.

Pest megye, Dunakeszi
Dunakeszi 

Ingatlan adatai
Irányár: 114 990 000 Ft
Típus: ház
Kategória: eladó
Alapterület: 197 m2
Fűtés: gáz (cirko)
Állapota: -
Szobák száma: 4
Építés éve: 1993
Szintek száma: -
További adatok
Telekterület: 100 m2
Kert mérete: 100 m2
Erkély mérete: -
Felszereltség: -
Parkolás: -
Kilátás: kertre néző
Egyéb extrák:  
-
Hirdető adatai
Hirdető neve: MPD Hungary Kft.
Kapcsolattartó: Casa Futura Kft.
Hirdető telefonszáma: +36703990399
Honlap: -

Üzenetet küldhet a hirdetőnek:
Az Ön neve:
Az Ön e-mail címe:
Üzenet: