Részletes leírás
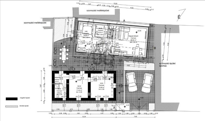
Budakalász történelmi központjában kínáljuk megvételre ezt a különálló, teljesen önálló kis házat, amely tökéletes választás lehet irodának, mini otthonnak, rendelőnek vagy kiadható lakrésznek.A ház saját bejárattal rendelkezik, intim előkerten át közelíthető meg, így a használata teljes mértékben szeparált, saját autó beálló tartozik hozzá.Főbb jellemzők:- Önálló épület, külön helyrajzi lehetőséggel- Gázfűtés + padlófűtés – gyors, hatékony, kedvező üzemeltetés- Rendezett, falusias hangulatú utcafront- Világos, jól használható helyiségek- Kiváló infrastruktúra: minden pár percen belül gyalogosanHelyiségek - Iroda / nappali - Tároló (külön helyiségként is használható) - Fürdőszoba - KözlekedőÖsszes hasznos alapterület: ~47,55 m² Kinek ideális? - vállalkozóknak, ügyvédeknek, tanácsadóknak → kiváló irodahelyszín - befektetőknek → könnyen kiadható - pároknak, egyedülállóknak → alacsony fenntartási költségek - rendelőnek vagy szolgáltató térnekBudakalász központi része nem véletlenül ennyire keresett: pár perces sétával elérhető üzletek, óvoda, iskola, buszmegálló, orvosi rendelő, parkok és a Duna-part is.A környék biztonságos és barátságos, tökéletes választás annak, aki értékeli a kisvárosi hangulatot a főváros közelségével.Ez az ingatlan gyorsan elkelő kategória – kis méret, alacsony fenntartás, tökéletes elhelyezkedés. Ha szeretné megtekinteni vagy kérdése van, hívjon most, amíg még elérhető!#BudakalászÚjépítésű #PrémiumIngatlan #KözpontiElhelyezkedés #MinőségiKivitelezés #ModernOtthon #EladóIngatlan #OCambyViktóriaÉberl

Pest megye, Budakalász
 

Ingatlan adatai
Irányár: 56 900 000 Ft
Típus: ház
Kategória: eladó
Alapterület: 48 m2
Fűtés: gáz (cirko)
Állapota: -
Szobák száma: 2
Építés éve: -
Szintek száma: -
További adatok
Telekterület: 138 m2
Kert mérete: 138 m2
Erkély mérete: -
Felszereltség: -
Parkolás: -
Kilátás: -
Egyéb extrák:  
-
Hirdető adatai
Hirdető neve: Otthon Centrum
Kapcsolattartó: Éberl Viktória
Hirdető telefonszáma: +36 70 388 6166
Honlap: -

Üzenetet küldhet a hirdetőnek:
Az Ön neve:
Az Ön e-mail címe:
Üzenet: