Részletes leírás
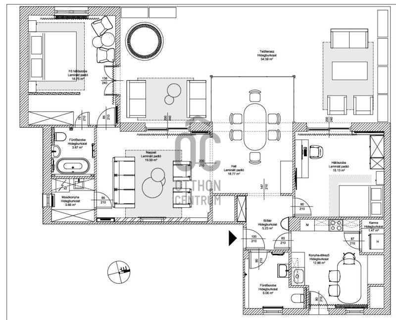
Penthouse a Szent István park felett – Margitsziget-panoráma, 50 m²-es tetőterasz, luxus Újlipótváros szívébenA 110 m²-es, belsőépítész által megálmodott otthon a kifinomult dizájn és a mindennapi kényelem kiegyensúlyozott elegyét kínálja. A lakás szíve az üvegfalú télikert-étkező, ahol télen-nyáron természetes fényben élvezheti a Dunára és a budai hegyekre nyíló kilátást.A tágas belső terek mellett hatalmas privát tetőterasz várja kültéri zuhannyal – ideális hely a város feletti pihenéshez. A lakásban 2 hálószoba, 2 fürdőszoba és egy nagy méretű nappali található, és válogatott prémium bútorokkal berendezett és gépesített. (A bútorok egy része a fotókon még nem látható.)– 110m² lakótér klimatizált üvegfalú télikert-étkezővel, 50m²-es tetőterasszal– Elsőrangú lokáció Újlipótvárosban a Pozsonyi út és a Szent István park mellett – Villamos: 4/6, trolibusz:75, 76, nem messze M3-as Metró, Nyugati Pu.-tol.– Örök panoráma a Szent István Parkra, a Margitszigetre és a budai hegyekre– Lifttel megközelíthető csendes legfelső szint - kerekesszékes használatra alkalmas– Prémium gépesítés, okostévé, okostelefonról vezérelhető klimatizálás és világítás– Távfelügyeletbe kötött riasztó, korszerű nyitás- és füstérzékelés– Parkolás közeli garázsban (bérlet része)– Otthonmenedzsment-asszisztencia (pl. tetőterasz ápolása) a bérlet része – takarítás igény szerintEz az ingatlan több mint lakás – életforma azoknak, akiknek fontos a tetőterasz és a télikert nyújtotta hangulat és a dunai horizont zavartalan látványa.Bérleti feltételekSzerződéskötéskor 2 havi kaució és 1 havi bérleti díj fizetendő.Minimum bérleti idő: 2026 július 31-igNemdohányzó ingatlan; szabadon mozgó kisállat nem hozhatóKözjegyzői okiratba foglalt kiköltözési nyilatkozat

Budapest, XIII.kerület
 

Ingatlan adatai
Irányár: 1 792 345 Ft/hó
Típus: lakás (tégla)
Kategória: kiadó
Alapterület: 110 m2
Fűtés: házközponti egyedi méréssel
Állapota: -
Szobák száma: 4
Építés éve: 1920
Szintek száma: -
További adatok
Telekterület: -
Kert mérete: -
Erkély mérete: 54 m2
Felszereltség: -
Parkolás: -
Kilátás: kertre néző
Egyéb extrák:  
-
Hirdető adatai
Hirdető neve: Otthon Centrum
Kapcsolattartó: Csernok Ferenc
Hirdető telefonszáma: +36 70 716 9511
Honlap: -

Üzenetet küldhet a hirdetőnek:
Az Ön neve:
Az Ön e-mail címe:
Üzenet: