Részletes leírás
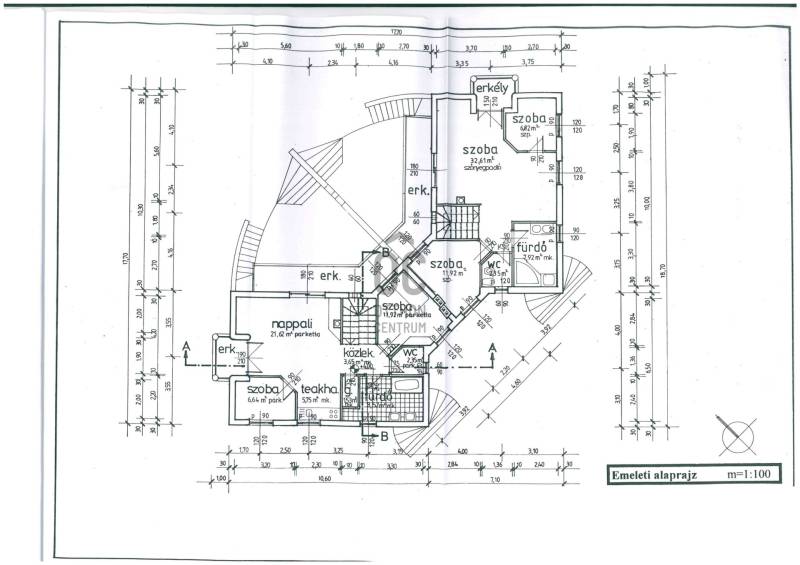
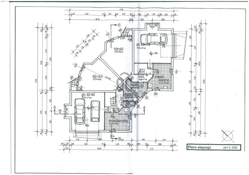
KIADÓ hangulatos, zöldövezeti ikerházfélA XI. kerületben, családi házas övezetben Őrmező csendes, ősfás utcájában egy belső 3 szintes ikerházfél várja új bérlőjét. A ház három szinten nyújt kényelmes, jól szeparálható életteret, nagy ablakokkal, természetes fénnyel, több terasszal és rendezett, hangulatos kerttel. A teljes ingatlan kitakarítva, berendezve áll rendelkezésre – azonnal költözhető.Paraméterek:- belső 3 szint- 3 hálószoba + 2 nappali- működő fa tüzelésű kandalló az emeleti nappaliban- netto 124 nm lakóterület- 91 nm- es alagsor: dupla garázs férőhely, tárolókkal és gépészeti helyiséggel, mosókonyhával- zöldövezeti, ősfás kert- nagy, hangulatos földszinti terasz- 14 nm-es emeleti terasz + külön erkély- 2 konyha + étkező- 2 fürdőszoba + külön wc helyiség- beépített jakuzzi sarok fürdőkád az emeleti fürdőszobában- bútorozott, frissen kitakarított állapot- fűtés+ melegvíz: gázkazán alagsori szinten- 2db fedett (garázs) + 2db nyitott gépkocsi beállóhelyJól szeparálható terek – családnak, több generációnak, akár otthoni munkavégzéshez is kivaló választás.Az ingatlan 2 havi albérleti díj és 1 havi kaució összeg megfizetése esetén költözhető.Amennyiben több kérdése lenne vagy szívesen megtekintené az ingatlant kérem hívjon a feltüntetett elérhetőségen.

Budapest, XI.kerület
 

Ingatlan adatai
Irányár: 650 000 Ft/hó
Típus: ház
Kategória: kiadó
Alapterület: 124 m2
Fűtés: -
Állapota: -
Szobák száma: 4
Építés éve: 2000
Szintek száma: -
További adatok
Telekterület: 600 m2
Kert mérete: 600 m2
Erkély mérete: 44 m2
Felszereltség: -
Parkolás: -
Kilátás: -
Egyéb extrák:  
-
Hirdető adatai
Hirdető neve: Otthon Centrum
Kapcsolattartó: Kurai Kitti
Hirdető telefonszáma: +36 70 461 9246
Honlap: -

Üzenetet küldhet a hirdetőnek:
Az Ön neve:
Az Ön e-mail címe:
Üzenet: