Részletes leírás
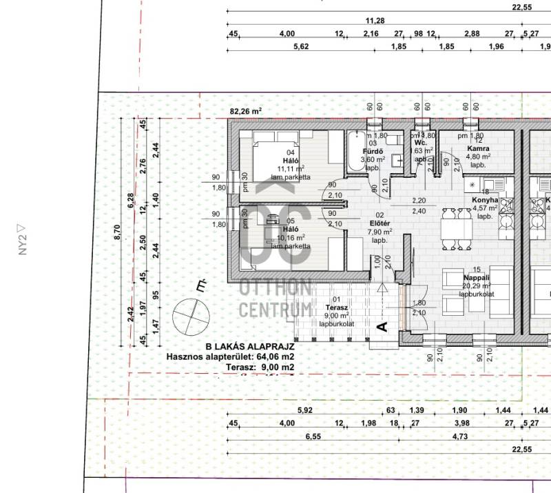
Dömsödön eladó • újépítésű• ikerház első fele• nettó 64 m2, bruttó 82.26 m2• amerikai konyhás nappali + 2 hálószoba• fűtés: hőszivattyú + padlófűtés• 10 cm grafitos szigetelés• választható burkolatok: hidegburkolatok: 4.500 Ft/nm-ig. (30x30 sztender méretig),meleg burkolatok: 3.500 Ft/nm-ig• telek: 276 m2• terasz: 9 m2Átadás: 2026 nyár

Pest megye, Dömsöd
 

Ingatlan adatai
Irányár: 47 900 000 Ft
Típus: ház
Kategória: eladó
Alapterület: 64 m2
Fűtés: -
Állapota: új
Szobák száma: 3
Építés éve: 2025
Szintek száma: -
További adatok
Telekterület: 276 m2
Kert mérete: 276 m2
Erkély mérete: 9 m2
Felszereltség: -
Parkolás: -
Kilátás: -
Egyéb extrák:  
-
Hirdető adatai
Hirdető neve: Otthon Centrum
Kapcsolattartó: Joó Krisztina
Hirdető telefonszáma: +36 70 469 3111
Honlap: -

Üzenetet küldhet a hirdetőnek:
Az Ön neve:
Az Ön e-mail címe:
Üzenet: