Részletes leírás
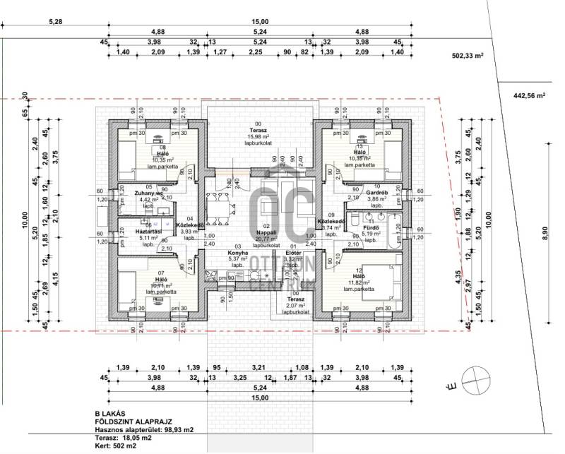
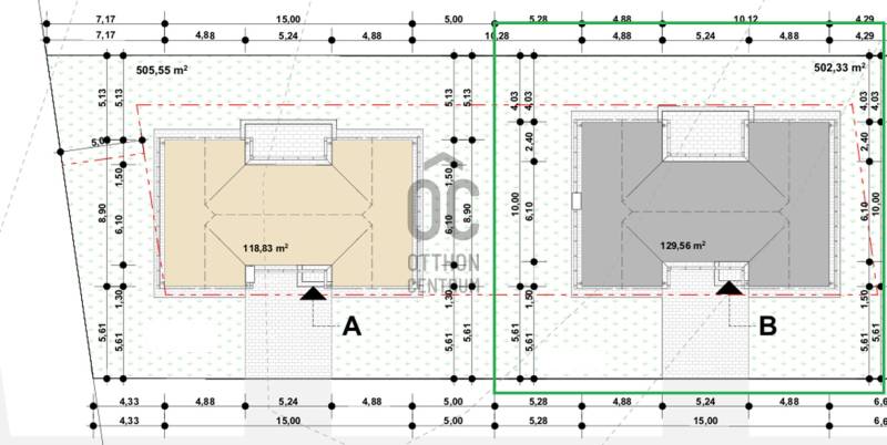
Eladó Kiskunlacházán • újépítésű (tégla)• ÖNÁLLÓ családi ház• nettó 99 m2• amerikai konyhás nappali + 4 hálószoba• fűtése: hőszivattyú + padlófűtés• választható burkolatok• telek: 502 m2

Pest megye, Kiskunlacháza
 

Ingatlan adatai
Irányár: 84 000 000 Ft
Típus: ház
Kategória: eladó
Alapterület: 99 m2
Fűtés: -
Állapota: új
Szobák száma: 5
Építés éve: 2025
Szintek száma: -
További adatok
Telekterület: 502 m2
Kert mérete: 502 m2
Erkély mérete: 16 m2
Felszereltség: -
Parkolás: -
Kilátás: -
Egyéb extrák:  
-
Hirdető adatai
Hirdető neve: Otthon Centrum
Kapcsolattartó: Joó Krisztina
Hirdető telefonszáma: +36 70 469 3111
Honlap: -

Üzenetet küldhet a hirdetőnek:
Az Ön neve:
Az Ön e-mail címe:
Üzenet: