Részletes leírás
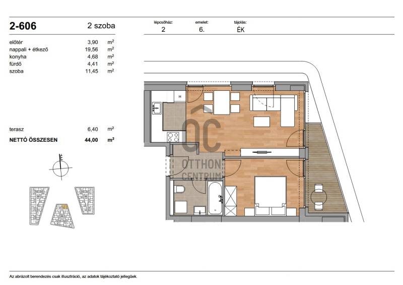
Az ingatlan nettó alapterülete 44 m² + 6,40 m² terasz.Projekt bemutatásaOtt, ahol a természet és a városi élet találkozik.A budai Duna-parton megvalósuló új prémium fejlesztés a vízparti élet luxusát kínálja modern, elegáns formában.Tágas teraszok, lenyűgöző panoráma, fenntartható műszaki megoldások – mindez néhány lépésre a folyótól, Buda dinamikusan fejlődő negyedében.A budai életstílus új dimenziójaEz a lakópark nem csupán otthon, hanem életérzés.A teraszról a Duna látványa, a vízpart halk morajlása és a modern városi környezet tökéletes harmóniája adja az itt élők mindennapjainak különleges atmoszféráját.A projekt két ütemben valósul meg:- I. ütem: három elegáns, 9 emeletes épület- II. ütem: három közvetlen vízparti épület, exkluzív kilátással és saját kikötővelKIVÉTELES LOKÁCIÓ – tökéletes elérhetőség- XI. kerület, közvetlenül a Duna-parton- Savoya Park: pár perc sétára- Etele Plaza: 10 perc autóval- Kopaszi-gát: mindössze 4 km- Móricz Zsigmond körtér: 13 perc busszal- Villamos- és buszmegállók néhány perc sétára, minden szolgáltatás – iskolák, éttermek, bevásárlási lehetőségek – elérhető közelségben.A környék Buda egyik leggyorsabban fejlődő területe, modern infrastruktúrával, vízparti sétányokkal és zöld parkokkal – a város új, természetközeli központja születik itt.Kortárs építészet – időtálló eleganciaA lakóépületek modern, letisztult megjelenése a Duna vonalvezetését idézi.A zöldtetők, parkosított udvarok és természetes anyaghasználat az épített környezet és a természet összhangját teremti meg.- 2 szintes mélygarázs, elektromos autótöltési előkészítéssel- Tágas, napfényes teraszok minden lakáshoz- Háromrétegű nyílászárók, prémium hő- és hangszigeteléssel- WPC teraszburkolatok, korszerű hőhídmentes homlokzati rendszer- Közösségi zöldterek és pihenőkertekMŰSZAKI TARTALOM – a jövő technológiája ma- A fejlesztés kiemelt hangsúlyt helyez az energiahatékonyságra és a komfortérzetre:- Környezetbarát levegős hőszivattyús rendszer- Mennyezeti hűtés-fűtés, helyiségenként szabályozható termosztátokkal- Okosvezérlés, távvezérelhető hőmérséklet-szabályozás- Zöldtető és hővisszanyerős szellőzés- Egyedi mérésű energiafogyasztás minden lakásbanA lakások belső kialakítása válogatott anyagkollekcióból választható, a klasszikus elegancia és a modern minimalizmus stílusában.Élmény, ami túlmutat az otthon fogalmánA lakópark lakói a vízpart nyugalmát, a zöld környezet frissességét és a budai életstílus kényelmét élvezhetik nap mint nap.A saját klubhelyiség és kikötő a vízparti élet exkluzív élményét teszi teljessé.Ez az a hely, ahol a mindennapok is ünneppé válnak.VÁRHATÓ ÁTADÁS:Szerkezetkész: 2027. februárKulcsrakész: 2028. decemberA Duna-part új fejezete most íródik.Itt nem csupán lakást vásárol – hanem egy életstílust, ami Buda jövőjét határozza meg.

Budapest, XI.kerület
 

Ingatlan adatai
Irányár: 84 900 000 Ft
Típus: lakás (újépítésű)
Kategória: eladó
Alapterület: 47 m2
Fűtés: -
Állapota: új
Szobák száma: 2
Építés éve: 2028
Szintek száma: -
További adatok
Telekterület: -
Kert mérete: -
Erkély mérete: 6 m2
Felszereltség: -
Parkolás: -
Kilátás: kertre néző
Egyéb extrák:  
-
Hirdető adatai
Hirdető neve: Otthon Centrum
Kapcsolattartó: Arany Bálint
Hirdető telefonszáma: +36 70 388 6116
Honlap: -

Üzenetet küldhet a hirdetőnek:
Az Ön neve:
Az Ön e-mail címe:
Üzenet: