Részletes leírás
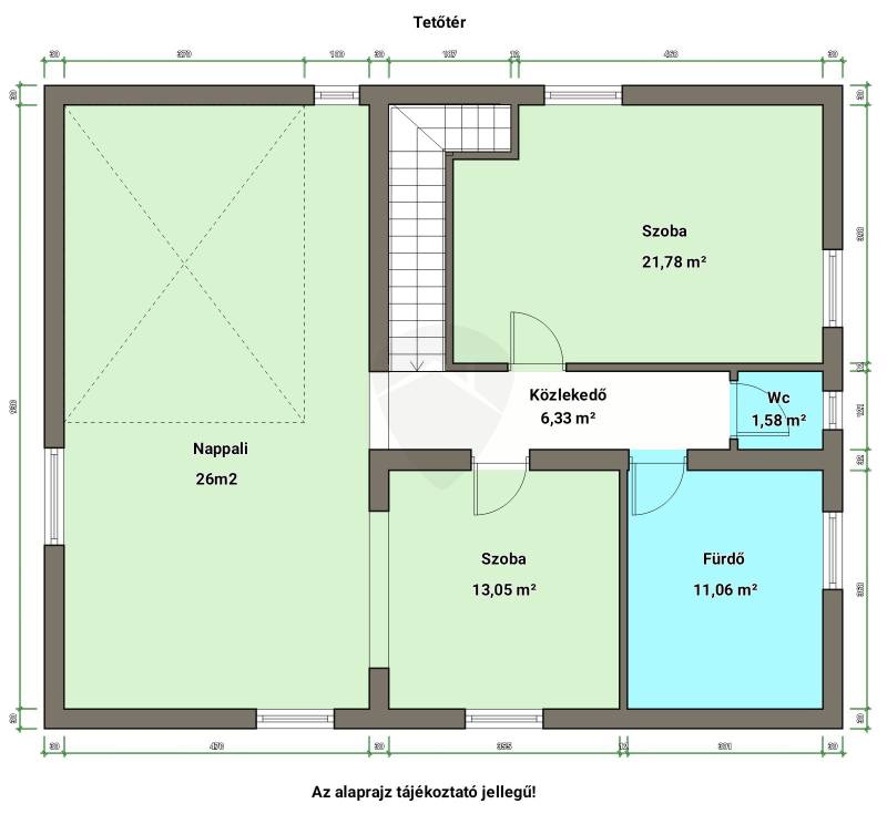
Fiatal felnőttek figyelem! Képzeld el, hogy a saját otthonodban ébredsz, ahol a modern életstílus és a kényelmes lakókörnyezet találkozik. Ez a 130 nm-es, TÉGLÁBÓL épült használt lakóingatlan tökéletes választás lehet számodra, ha az új otthonodat szeretnéd saját igényedre szabni.A galériás kialakítás nemcsak különleges hangulatot ad, hanem egyedi és növeli a térérzetet is. A 3 tágas szoba, 2 nappali és a 2 fürdőszoba ideális elrendezést biztosít. Néhány felújítás már elkezdődött, amelyekkel már nem kell foglalkoznod:- Új tetőhéjazat- Új víz- és villanyvezeték- Új ereszcsatornaA telek mérete 350 nm, ami elegendő helyet biztosít a szabadidős tevékenységekhez és könnyen karban tartható. Az autó parkolására egy teremgarázs és a zárt térkövezett udvar áll rendelkezésre. Az ingatlan tehermentes, így gyorsan és zökkenőmentesen birtokba veheted.A központi elhelyezkedésnek köszönhetően minden fontos szolgáltatás karnyújtásnyira van. Boltok, éttermek és szórakozási lehetőségek mind megtalálhatóak a közelben, így nem kell messzire utaznod a mindennapi szükségleteidért. A közlekedés is kiváló, hiszen a város tömegközlekedési lehetőségei könnyedén elérhetőek.A környék biztonságos és csendes, a településen folyamatosan FEJLŐDIK. Ne habozz, hiszen egy ilyen lehetőség, ilyen KEDVEZŐ ÁRON gyorsan el fog tűnni a piacról!Ha felkeltette az érdeklődésedet ez az ingatlan, vagy kérdéseid lennének, bátran kereshetsz!

Jász-Nagykun-Szolnok megye, Jászfényszaru
 

Ingatlan adatai
Irányár: 46 000 000 Ft
Típus: ház
Kategória: eladó
Alapterület: 130 m2
Fűtés: -
Állapota: -
Szobák száma: 3
Építés éve: 2006
Szintek száma: -
További adatok
Telekterület: 350 m2
Kert mérete: 350 m2
Erkély mérete: 14 m2
Felszereltség: -
Parkolás: -
Kilátás: utcai
Egyéb extrák:  
-
Hirdető adatai
Hirdető neve: Ingatlanmentor powered by Rock Home
Kapcsolattartó: Horváth Tibor
Hirdető telefonszáma: +36 70 467 6871
Honlap: -

Üzenetet küldhet a hirdetőnek:
Az Ön neve:
Az Ön e-mail címe:
Üzenet: