Részletes leírás
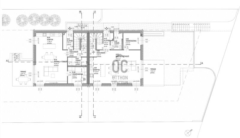
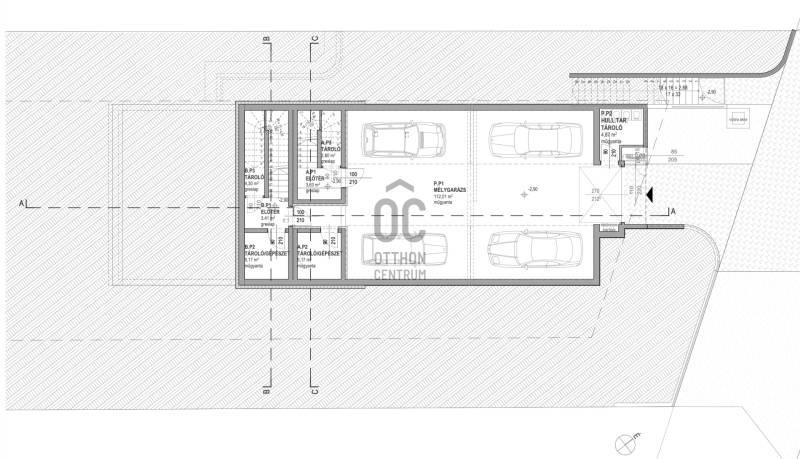
Eladó, Minőségi alapanyagokkal épülő, Lakás: 135,72 + Erkély/Terasz: 43,00 m²-es, 5 szobás, 2 fürdőszobás, Ikerház 751 m²-es telekkel.FONTOSABB TUDNIVALÓK A LAKÁSRÓL:- Újépítésű, minőségi alapanyagok felhasználásával,- Modern tervezéssel és kivitelezéssel készül,- Praktikus elrendezéssel és helykihasználással,- Korszerű, alacsony hőátbocsátási tényezővel tervezett,- Világos szobákkal, zöldre néző hőszigetelt ablakokkal,- Motoros mozgatású redőnyökkel,- 270 cm belmagassággal és rendkívül kedvező életterekkel,- Hőszivattyús fűtés-hűtés rendszerrel felszerelt.FONTOSABB TUDNIVALÓK A HÁZRÓL:- Nagytelkes terület, összesen 1623 m²,- Az épület homlokzata modern, a környezetbe illő, minimalista homlokzat,- A lakások száma az épületben 2db,- Parkosított tágas udvarrésszel és kertkapcsolattal,- Kültéri épület és udvarrész világítással felszerelt,- Az épület Napelemes előkészítéssel rendelkezik.Az Ürömhegyi lejtő rendkívül csendes, családi házas környék Budapest III. kerületében, ahol a közlekedés, egészségügyi ellátás, oktatási intézmények és szolgáltatások könnyen elérhetők, főként a közeli Bécsi út és Aranyhegyi terület révén.​ Az Ürömhegyi lejtő tehát megfelelő infrastruktúrával, könnyen elérhető szolgáltatásokkal és jó közlekedési kapcsolatokkal rendelkezik, ideális választás családosok és elvonulásra vágyók számára.​A környék szolgáltatásai, gyalogos vagy néhány perces közlekedési távolságra:KÖZLEKEDÉS: Tömegközlekedéssel a 160-as, 943-as, valamint a 960-as buszjáratok érintik a környéket, így a belváros és Óbuda felé is jó a közlekedési kapcsolat.​ A (260 és 219) is közlekedik a Harsánylejtő/Aranyhegy lakóterület felé. A környék főbb útvonala a Bécsi út, amely gyorsan elérhető autóval és tömegközlekedéssel is.​ A járatok hétköznap reggel és délután sűrűbben, egyéb időszakban ritkábban közlekednek.​GYÓGYSZERTÁRAK: A Harsánylejtő Gyógyszertár a Bécsi út 314. alatt, 0-24 órás nyitvatartással várja az érdeklődőket. Ingyenes utcai parkolás, akciók és kiterjedt szolgáltatáskínálat jellemzi.​ Bankkártyás fizetés lehetséges, külön gyógyászati és állatgyógyászati termékek is elérhetők.​EGÉSZSÉGÜGYI SZOLGÁLTATÁS: A III. kerületben található Szent Margit kórház, illetve több járóbeteg-szakrendelő biztosítja a lakosság számára az alap- és szakorvosi ellátást.​ A Csillaghegyi Közösségi Házban sószoba is működik, ami légzőszervi és allergiás problémákra jelent jó megoldást, kizárólag III. kerületi lakosok számára, előzetes bejelentkezéssel. Szociális ápoló-gondozó szolgáltatások is elérhetőek a környéken.​OKTATÁSI INTÉZMÉNYEK ÉS GYERMEKINTÉZMÉNYEK: Óvodák és általános iskolák elsősorban a III. kerület központibb részein találhatók, átlagosan a kerületi óvodások és iskolások 10%-a nem helyi lakos.​ Az Aranyhegy-Ürömhegy-Péterhegy szegregátum mikroregionális oktatási vonzással bír, tehát a környéken több gyermekintézmény is hozzáférhető.​ÉLELMISZERBOLTOK ÉS EGYÉB SZOLGÁLTATÁSOK: Nagyobb boltok, bevásárlóközpontok a Bécsi út mentén vagy annak közvetlen közelében találhatók, így az Üröhegyi lejtőről gyorsan elérhetők.​ A környéken különféle további szolgáltatások, például szabadidős, sport- és kulturális létesítmények, illetve sószoba is igénybe vehető a Csillaghegyi közösségi házban.​KEDVEZŐ LAKÁSHITEL (jelentős volumenben helyezünk ki hiteleket): EGYEDI IGÉNYEKRE SZABOTT LAKÁSHITELEKKEL állunk rendelkezésére. BANKFÜGGETLEN hitelcentrumunk az országban elérhető ÖSSZES BANK ÉS HITELINTÉZET ajánlatát VERSENYEZTETI az Ön számára díjmentesen. MUNKATÁRSAINK nagy szakmai tapasztalattal várják Önt az előre egyeztetett időpontban akár a normál munkaidő után is.------------------------Projekt bemutatásaV Á L L A L T M Ű S Z A K I T A R T A L O MA megvalósuló lakóingatlanfejlesztés tervezésekor kiemelt figyelem övezi nem csak az átgondolt térkapcsolatokat és a jól használható helyiségeket, hanem a beépítendő anyagokat is. Törekszünk a legjobb ár/érték arány elérésére, a modern megjelenésre, a korszerű műszaki megoldásokra és arra, hogy a ház használója olyan anyagokkal és megoldásokkal találkozzon nap mint nap, aminek látványa és érintése méltó a megbecsülésre, és örömöt szerez a mindennapokban. Ennek megfelelően a nem látható szerkezetek elsődleges szempontja a magas műszaki elvárások mellett a tartósság, értékállóság, a látható, érezhető, tapintható anyagok esetén pedig figyelünk a felületekre, esztétikára is.ÉPÍTÉSZET: ALAPOZÁS: statikailag méretezett vasbeton sáv- vagy lemezalap. FÖDÉMEK: monolit vasbeton födémszerkezet az építési tervdokumentáció statikai terve szerint úsztatott padló rétegrenddel, akusztikailag megfelelő vastagságban. TEHERHORDÓ FALAZAT: vázkerámia falazóblokk vagy pórusbeton falazóelem, pinceszinten zsalukő. VÁLASZFALAK: fürdőszobák és egyéb belső lakóhelyiségek falazata 10 cm NF égetett tégla vakolva, tárolók és alárendelt helyiségek pórusbeton, égetett kerámia vagy gipszkarton. TETŐSZERKEZET:magastető esetén: fa szerkezetű tető a szarufák között szigeteléssel kitöltve, gipszkarton belső borítással, az építési tervdokumentáció szerint, lapostető esetén: vasbeton szerkezet víz- és hőszigetelve. ÉPÜLET KÜLSŐ HŐSZIGETELÉS: hőtechnikailag méretezett EPS szigetelés mechanikai rögzítéssel és hálóval ragasztva, 1,5 mm szemcsenagyságú kapart hőszigetelő nemesvakolat.NYÍLÁSZÁRÓK: ABLAKOK: korszerű, alacsony hőátbocsátási tényezőjű (U=0,75 W/m2K, Uf=0,79W/m2K), 7 légkamrás, 3 rétegű üvegezéssel ellátott műanyag nyílászárók kívül a homlokzat színéhez illeszkedő, belül fehér színben. A nappaliban EMELŐ-TOLÓ, a többi helyiségben helyiségenként 1 nyíló vagy bukó-nyíló és terv szerinti fix ablakok. BELSŐ AJTÓK: nettó 120e Ft-ig választható, küszöb nélküli kialakítású, kilinccsel, Beruházóval egyeztetett beszállítótól választva. Lakásonként 7db belső ajtó képezi az alapár részét. BEJÁRATI AJTÓ: Minősített lakásbejárati ajtó HPL borítással vagy festett felülettel, nettó 280e Ft-os összeghatárig, BELSŐ AJTÓ - Garázstéracél saroktokos ajtók nettó 100e,- Ft értékig. 3db ajtó képezi az alapár részét.ÁRNYÉKOLÓ:Motoros mozgatású redőny vakolható redőnytokkal, rolós vagy fix szúnyoghálóval, a nappali emelő-toló esetén toló vagy pliszé kivitelben. ABLAKPÁRKÁNYOK: kívül és belül egyaránt gránit, helopál vagy ehhez hasonló anyagú ablakpárkányok.TERASZOK: 60x60 cm-es modulméretű fagyálló járólap felszíni vízelvezetéssel, emeleten csepegtető alkalmazásával, járólap szegélyezés azonos anyagból 8 cm magasságig, fém teraszkorlát az emeleten.GÉPKOCSI BEHAJTÓ: Az épület körül40 cm-es osztályozott murva- vagy kőzúzalékágy, gépkocsi behajtó legalább 3m szélességben térkövezett borítást kap.MÉLYGARÁZS: Elektromos mozgatású, távirányítóval vezérelt szekcionált garázskapu, fénysorompóval ellátva.BURKOLATOK: Fürdőszobák, WC-k, konyha, étkező és előtér - Padlóburkolat: választható színű járólap, 30x30 / 60x30-as méretű, nettó 10e Ft/nm keretösszegben, illeszkedő élvédőkkel, járólap szegélyezés azonos anyagból 8 cm magasságig, 10% kálóval számolva. OPCIONÁLIS (többletköltség vállalása esetén): értékhatár feletti beszerzés, eltérő méretű lapokkal való burkolás, élvédők beszerzése és felrakása, ez esetben az anyagszállítás költsége is a vevőt terheli.FÜRDŐSZOBÁK - FALBURKOLAT: Választható greslap, 30x30 / 60x30-as méretű falburkolat a fürdőszobában plafonig, illetve wc-ben a kézmosó körül 1 nm, valamint a wc körül 1 nm, összesen 6 nm burkolási felület nettó 10eFt/nm keretösszegben, élvédők nélkül, 10% kálóval számolva. OPCIONÁLIS (többletköltség vállalása esetén): megadott területek feletti burkolás, és a megadott burkolólap mérettől eltérő méretű burkolólapokkal történő burkolás.LAKÓSZOBÁK - PADLÓBURKOLAT: Laminált fa padlóburkolat nettó 8e Ft/nm-ig, színazonos szegőléccel és végzáróval. OPCIONÁLIS (többletköltség vállalása esetén): értékhatár feletti burkolat választása, eltérő burkolattípus választása, fehér színű mdf lábazat, egyedi beszerzés.LÉPCSŐ - PADLÓBURKOLAT: Lépcsőburkolat nettó 10e Ft/nm-ig, színazonos szegőléccel és végzáróval. OPCIONÁLIS (többletköltség vállalása esetén): értékhatár feletti burkolat választása, eltérő burkolattípus választása, fehér színű mdf lábazat, egyedi beszerzés.MÉLYGARÁZS PINCESZINT: Műgyanta burkolat, a gépészeti helyiségben műgyanta vagy választható színű járólap nettó 7,5e Ft/nm keretösszegben, illeszkedő élvédőkkel, járólap szegélyezés azonos anyagból 8 cm magasságig, 10% kálóval számolva.KÜLTÉRI MUNKÁK: Kertészeti munkák, tereprendezés:terepszintek kialakítása, durva tereprendezés, 1 db kerti csap, 1 db vízbetáp és 1 db erősáramú csatlakozás automata öntözőnek a földszinti lakások kertjéhez. KERÍTÉS:utcafronti kerítés zsalukő alapzattal, míg a szomszédos telkeket elválasztó 3D elemes kerítés, 250x150 cm-es táblaméret, tartóoszlopokkal. KAPUK: utcafronton motoros kapu. KAPUCSENGŐ/EGYEBEK: Vezeték nélküli kapucsengő, postaláda, videó kaputelefon lakásonként 1 belső egységgel, házszám. KÜLSŐ VILÁGÍTÁS: Nappali terasz felé 2 db, oldalkert felé 2 db falikar kiállás. PRGOLA ELŐKÉSZÍTÉS: Elektromos kiállás árnyékoláshoz és világításhoz.ÉPÜLETGÉPÉSZET (VÍZ-CSATORNA, HŰTÉS-FŰTÉS, SZELLŐZÉS): KÜLSŐ KÖZMŰBEKÖTÉS: Víz- és szennyvíz közmű bekötés és teljes felszíni esővíz elvezetés, szikkasztó kiépítése. FÜRDŐSZOBA: ALAPSZERELÉS: fürdőszobánként szerződéses alaprajz szerint 1db beépített wc állvány és fajansz, műanyag nyomólap, 1db kerámia zuhanytálca üvegfallal/ üvegkabinnal és 1 db mosdó. Ezekhez szükséges víz és csatorna kiállások, valamint egyik fürdőszobában/mosókonyhában +1 db víz-szennyvíz kiállás a mosógépnek. OPCIONÁLIS (többletköltség vállalása esetén): plusz kiállások, alaprajztól eltérő kialakítás.SZERELVÉNYEZÉS: Alaprajz szerint zuhanytálca üvegfallal/üvegkabinnal vagy kád + mélyöblítésű WC + falra szerelt kézmosó, szifonnal + falra szerelt zuhanycsap, zuhanyszettel + kézmosó csaptelep + szifon leeresztővel, törölközőszárító. (Mindezen szerelvények, szaniterek, csaptelepek lakásonként nettó 800e Ft értékhatárig szerepelnek az alapárban). OPCIONÁLIS (többletköltség vállalása esetén): értékhatár feletti beszerzés vagy egyedi szanitercsomag választása (anyagár + szállítás + anyagmozgatás költségének elszámolása), bútoros mosdó, pipere szerelvények beszerzése és felszerelése. KONYHA: ALAPSZERELÉS: 1db kézi mosogató, 1db mosogatógép víz-és szennyvíz kiállás, elszívó kivezetés becsövezése. OPCIONÁLIS (többletköltség vállalása esetén): plusz kiállások, konyhabútor beépítése. MELEGVÍZELLÁTÁS: lakásonként 150 literes bojler vagy kombi hőszivattyús melegvíz tároló kerül kialakításra. FŰTÉS-HŰTÉS: központi levegő hőszivattyús fűtési-hűtési rendszer födémbe kerülő csövezéssel, mennyezeti hűtés-fűtés kialakítására, termosztáttal vezérelve lakószobánként, padlófűtés a földszinten és az emeleten. OPCIONÁLIS (többletköltség vállalása esetén): secunder fűtésrendszer kiépítése (pl. klímarendszer kiépítése).OPCIONÁLIS RÉSZEK (többletköltség vállalása esetén): SZELLŐZÉS: (többletköltség vállalása esetén): hővisszanyerős szellőztető gép telepítése és a szellőztető rendszer beüzemelése. VÍZNYOMÁS FOKOZÁS: víznyomásfokozó berendezés beépítése, puffertartállyal. VÍZLÁGYÍTÁS: vízlágyító berendezés beépítése.ERŐSÁRAM: KÜLSŐ KÖZMŰBEKÖTÉS: Árambekötés, önálló mérésű 3x16A kapacitás lakásonként, valamint a központi épületgépészeti egységekhez szükséges kapacitás. NAPELEM ELŐKÉSZÍTÉS: Tetőn a Vevő által megjelölt helyre elektromos előkészítés. ALAPSZERELÉS: Hálószobákban: 1db egy pólusú villanykapcsoló, 3 db egyes konnektor, 1 db mennyezeti lámpa kiállás. NAPPALI-ELŐTÉR: 4 db egyes villanykapcsoló (melyből 2 db alternatív/váltó), 6 db konnektor, 3 db mennyezeti lámpa kiállás. FÜRDŐK: 1 db két pólusú villanykapcsoló, 3 db konnektor, 1-1 db mennyezeti és fali (tükörvilágítás) lámpa kiállás, villanymotoros szagelszívó motor beépítése kapcsoló általi vezérléssel. WC-k: 1 db egy pólusú villanykapcsoló, 1 db mennyezeti lámpa kiállás, villanymotoros szagelszívó motor beépítése kapcsoló általi vezérléssel. KONYHA. ÉTKEZŐ: 1db egyes villanykapcsoló, 4 db konnektor, közvetlen mosogatógép és 1 db 3 fázisú elektromos tűzhely kiállás, konyhai elszívó kiállás, 1-1 db mennyezeti lámpa és pultvilágítási kiállás. KÖZLEKEDŐ: 2 db villanykapcsoló (alternatív) 1 db konnektor, 1 db mennyezet kiállás.KÜLTÉRI RÉSZEK: Bejáratnál és teraszoknál 1-1 db egyes villanykapcsoló, 2 db homlokzat világítás. GARÁZS: mozgásérzékelő által vezérelt világítás, 2 db konnektor (gépészeten kívüli) - 3 db kültéri világítás terasznál, 1 db világítás a bejárati ajtónál, - napelemes rendszer előkészítés mindhárom lakóegységhez, - elektromos autótöltőnek előkészítés mindhárom lakóegységhez a garázsban, - elektromos előkészítés jacuzzinak a földszinti teraszon. OPCIONÁLIS (többletköltség vállalása esetén): plusz bekötések, szerelvények és kiállások kiépítése, valamint világítótestek beszerzése és világítótestek felszerelése.GYENGEÁRAM: Kommunikáció:a nappali és a hálószobákban 1-1 db internet és TV csatlakozás. OPCIONÁLIS (többletköltség vállalása esetén): plusz kiállások, gyengeáramú hálózat bővítése. RIASZTÓ RENDSZER: Alapkábelezés későbbi riasztó rendszer telepítéséhez, aktív eszközök telepítése nélkül. Tervezett kiállások: bejárati ajtó (1 db), nappali (2 db), előszoba (1 db), hálószobák (1-1 db) fürdőszobák (1-1 db). Nyitás- vagy mozgásérzékelők + riasztó központ + külső jelző berendezés + 1 db kezelő panel (bejáratnál). OPCIONÁLIS (többletköltség vállalása esetén): plusz érzékelők vagy ettől eltérő riasztó rendszer szerelése, aktív eszközök szerelése és riasztórendszer üzembehelyezése. SZOLGÁLTATÓI TELEKOMMUNIKÁCIÓS KIÉPÍTÉS: Földcsatorna kiépítés a telekhatártól a pinceszinti fogadóig, kábelezés a pinceszinti fogadótól a lakó megbízásából a szolgáltató feladata.

Budapest, III.kerület
 

Ingatlan adatai
Irányár: 259 900 000 Ft
Típus: ház
Kategória: eladó
Alapterület: 136 m2
Fűtés: -
Állapota: új
Szobák száma: 5
Építés éve: 2027
Szintek száma: -
További adatok
Telekterület: 751 m2
Kert mérete: 751 m2
Erkély mérete: 43 m2
Felszereltség: -
Parkolás: -
Kilátás: -
Egyéb extrák:  
-
Hirdető adatai
Hirdető neve: Otthon Centrum
Kapcsolattartó: Füleki Szabolcs
Hirdető telefonszáma: +36 70 469 3676
Honlap: -

Üzenetet küldhet a hirdetőnek:
Az Ön neve:
Az Ön e-mail címe:
Üzenet: