Részletes leírás
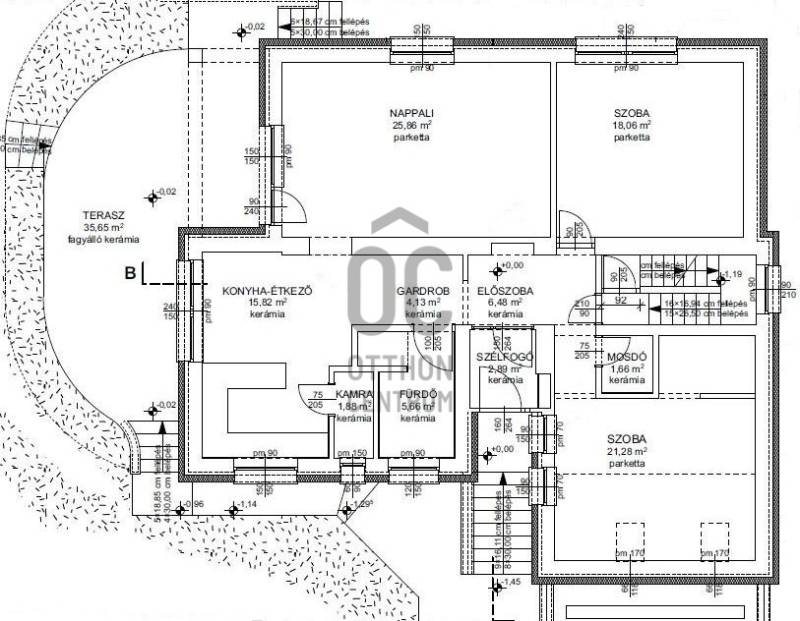
Eladó a XVI. kerület Mátyásföldi részen, csendes utcában egy 114 m2-es 4 szobás, tégla építésű, szigetelt, gázkazán fűtésű teljeskörűen felújított családi házÁlmodott már arról, hogy egy csendes, biztonságos utcában élhet, mégis mindenhez közel?Mátyásföld egyik legkedveltebb részén most lehetősége van egy 114 m²-es, teljeskörűen felújított, 4 szobás tégla építésű családi házrész megvásárlására, amelyhez 513 m² saját kert tartozik a 855 m²-es telken belül.Miért különleges ez az ingatlan?Felújított és azonnal költözhető – 15 cm-es külső szigetelés, új műanyag nyílászárók redőnnyel és szúnyoghálóval, új elektromos hálózat és szerelvények, felújított burkolatok, frissen lakkozott parketta és újak a radiátorok is.Modern konyha és bútorok – vadonatúj konyhabútor, előszobabútor, gardrób és korszerű konyhagépek várják az új tulajdonost.Energiatakarékos megoldások – napkollektor (nemrég szervizelve, 10 évig gondozásmentes), korszerűsített gázkazán, amely három fűtési kört kezel (radiátor, padlófűtés, melegvíz).Világos, kényelmes terek – 4 szoba, nagy nappali, jó elosztás, igazi otthonérzet.Szuterén szint – raktár és tárolási lehetőség, ahol saját elképzeléseit is megvalósíthatja.Amit imádni fog benne:- A saját kert ideális hely pihenésre, családi összejövetelekre vagy akár kertészkedésre.- Csendes, zöldövezeti környezet, ahol mégis pillanatok alatt elérhető minden városi kényelem.- Teljes nyugalom, biztonság és igazi otthonhangulat, ahol nincs más dolga, csak beköltözni.Amit az új tulajdonosnak kell majd befejezni:- Kaputelefon bekötése- Riasztó rendszer közös összehangolása a szomszéddalEzek azonban már apróságok egy olyan háznál, ahol a nagy és költséges felújítások mind el lettek végezve!Ha Ön egy kész, igényes otthont keres Budapest egyik legkedveltebb kertvárosi részén, akkor ezt az ingatlant látnia kell!Ne hagyja ki ezt a lehetőséget – az ilyen állapotú, saját kerttel rendelkező házak ritkán kerülnek piacra Mátyásföldön.Hívjon most, és nézze meg személyesen, hogy beleszerethessen ebbe az otthonba!

Budapest, XVI.kerület
 

Ingatlan adatai
Irányár: 149 000 000 Ft
Típus: ház
Kategória: eladó
Alapterület: 144 m2
Fűtés: gáz (cirko)
Állapota: -
Szobák száma: 4
Építés éve: 1987
Szintek száma: -
További adatok
Telekterület: 855 m2
Kert mérete: 855 m2
Erkély mérete: -
Felszereltség: -
Parkolás: -
Kilátás: -
Egyéb extrák:  
-
Hirdető adatai
Hirdető neve: Otthon Centrum
Kapcsolattartó: Fleischer Andrea
Hirdető telefonszáma: +36 70 388 5946
Honlap: -

Üzenetet küldhet a hirdetőnek:
Az Ön neve:
Az Ön e-mail címe:
Üzenet: