Részletes leírás
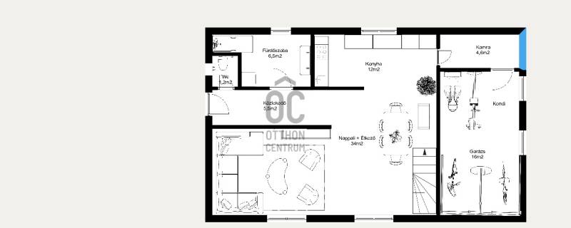
Erdőkertes szívében, Pest vármegyében kínálunk eladásra egy 136 m²-es, felújított családi házat, amely tökéletes választás családok számára.Az ingatlanban 4 tágas szoba és 2 fürdőszoba található, így minden családtag számára biztosított a kényelem és a privát tér.A 2023–24-es felújítás során megújultak a külső és belső nyílászárók, a tetőszigetelés, valamint új kondenzációs gázkazán és klíma került beépítésre. A teljesen új, gépesített konyhabútor a vételár részét képezi.A 60 m²-es terasz ideális helyszín a reggeli kávéhoz vagy családi grillezéshez.A 580 m²-es telek bőséges teret kínál pihenéshez, kertészkedéshez, akár medence kialakításához is.A garázs konditeremként és autóbeállóként is funkcionál, emellett az udvaron három fedett autóbeálló is helyet kapott.Erdőkertes csendes, zöldövezeti elhelyezkedése tökéletes választás mindazoknak, akik a természet közelségét keresik, miközben Budapest is könnyen elérhető autóval vagy busszal.További szolgáltatások:✅ Ingyenes, bankfüggetlen hitelügyintézés (CSOK, Babaváró, Falusi CSOK, 3 % Otthon Start)✅ Jogi háttér és biztosítás✅ Energetikai tanúsítvány készítése✅ Ingyenes felmérés ingatlan eladáshozNe hagyja ki ezt a remek lehetőséget – hívjon bizalommal, és segítek megtalálni új otthonát!

Pest megye, Erdőkertes
 

Ingatlan adatai
Irányár: 102 000 000 Ft
Típus: ház
Kategória: eladó
Alapterület: 136 m2
Fűtés: gáz (cirko)
Állapota: -
Szobák száma: 4
Építés éve: 1995
Szintek száma: -
További adatok
Telekterület: 580 m2
Kert mérete: 580 m2
Erkély mérete: 60 m2
Felszereltség: -
Parkolás: -
Kilátás: -
Egyéb extrák:  
-
Hirdető adatai
Hirdető neve: Otthon Centrum
Kapcsolattartó: Bíró-Csitári Tünde
Hirdető telefonszáma: +36 70 412 5616
Honlap: -

Üzenetet küldhet a hirdetőnek:
Az Ön neve:
Az Ön e-mail címe:
Üzenet: