Részletes leírás
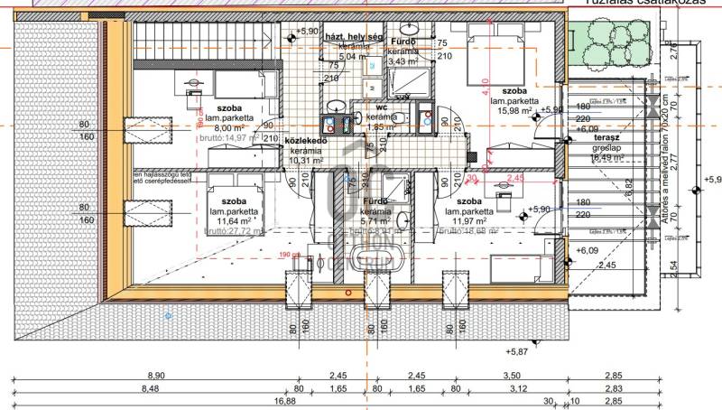
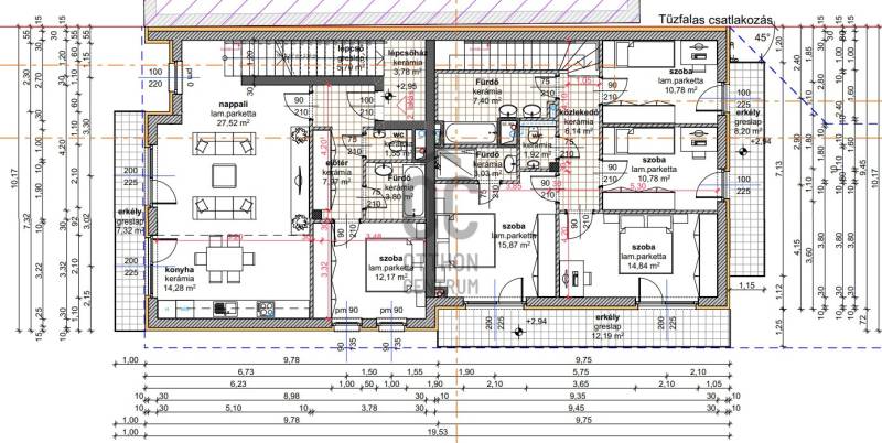
Új építésű lakás eladó Zugló Alsórákos részén, csendes mellékutcában – külön telekrésszel, garázzsal,beállóval, hőszivattyús hűtéssel-fűtéssel.Mindkét lakáshoz saját telekrész, fedett garázs, valamint felszíni parkoló tartozik.A lakásokhoz külön-külön \"H\" tarifás hőszivattyús rendszer, padlófűtés, valamint mennyezeti hűtés-fűtés kerül beépítésre. A kivitelezés során prémium minőségű anyagokat, korszerű szigeteléseket és energiatakarékos megoldásokat használnak.A burkolatok, szaniterek és egyéb anyagok választhatóak.Kérésre elküldöm a műszaki tartalmat.Átadás kulcsrakész állapotba.Várható átadás: 2026 június.

Budapest, XIV.kerület
 

Ingatlan adatai
Irányár: 269 000 000 Ft
Típus: ház
Kategória: eladó
Alapterület: 141 m2
Fűtés: -
Állapota: új
Szobák száma: 6
Építés éve: 2026
Szintek száma: -
További adatok
Telekterület: 633 m2
Kert mérete: 633 m2
Erkély mérete: -
Felszereltség: -
Parkolás: -
Kilátás: -
Egyéb extrák:  
-
Hirdető adatai
Hirdető neve: Otthon Centrum
Kapcsolattartó: Boros László
Hirdető telefonszáma: +36 70 716 8496
Honlap: -

Üzenetet küldhet a hirdetőnek:
Az Ön neve:
Az Ön e-mail címe:
Üzenet: