Részletes leírás
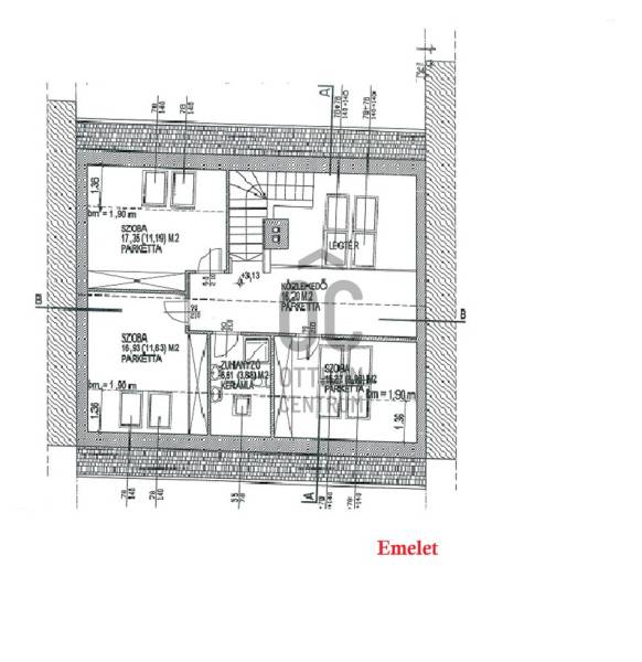
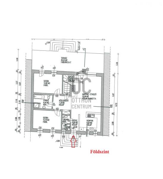
Fedezd fel álmaid otthonát Budapest XIV. kerületének csendes, de mégis pezsgő részén Zuglóban!Ez a felújított, kiváló állapotú, sorház jellegű, két szintes családi ház nem csupán egy ingatlan, hanem egy életstílus, amely ideális azok részére, akik értékelik a kényelmet és a természet közelségét. Nappali+ 5 tágas hálószobával rendelkezik, így bőséges teret biztosít a család számára, vagy akár baráti összejövetelekhez is. Két fürdőszobája garantálja, hogy reggelente senkinek sem kell várakoznia és emellett még vendég mosdó is megtalálható. A házhoz tartozik egy 403 négyzetméteres telek, amely rendezett kerttel rendelkezik. A füvesített kertben kiépített öntözőrendszer, 3x5 méteres hőszivattyúval fűthető medence, fedett sütögető rész és egy kis faház tárolónak is megtalálható. A 35 nm-es terasz tökéletes helyszín családi grillezésekhez vagy csak a napozáshoz. A prémium kivitelezés és a modern dizájn megjelenik a ház minden részletében. A kandallós nappali a téli estéken biztosítja a meghitt hangulatot. Az ingatlan fűtése gázkazán (viessmann) történik, radiátoros hőleadókkal, valamint padlófűtés is ki lett építve.Hűtése klímával, így a legforróbb nyári napokon is kellemes hőmérsékletet biztosít. A riasztó és kamera rendszer és a biztonságos környék nyugalmat ad a mindennapokhoz. Két autó számára udvari beálló áll rendelkezésre elektromos kapuval, biciklitárolóval. Fenntartása nagyon kedvező, köszönhető ez az 50 cm-es téglafalazatnak és a modern nyílászáróknak is.Az ingatlan tehermentes, így gyorsan birtokba vehető kifizetést követően.A környék kiemelkedő közlekedési lehetőségekkel rendelkezik: a kitűnő közlekedésnek köszönhetően gyorsan elérheted a belvárost. A csendes utcák és a barátságos szomszédság ideális környezetet biztosítanak az ideköltözők számára, akik szeretnék élvezni a városi élet előnyeit, miközben a természet lágy ölén pihenhetnek. Ne habozz, ha egy exkluzív, modern és családbarát otthont keresel, ami minden igényt kielégít!Várom megkeresésedet hétköznap és hétvégén is!Ez az ingatlan a \"Felező csomag\" megbízási portfólióhoz tartozik. Részletek az Otthon Centrum weboldalán.

Budapest, XIV.kerület
 

Ingatlan adatai
Irányár: 279 900 000 Ft
Típus: ház
Kategória: eladó
Alapterület: 170 m2
Fűtés: gáz (cirko)
Állapota: -
Szobák száma: 6
Építés éve: 2005
Szintek száma: -
További adatok
Telekterület: 403 m2
Kert mérete: 403 m2
Erkély mérete: 35 m2
Felszereltség: -
Parkolás: -
Kilátás: -
Egyéb extrák:  
-
Hirdető adatai
Hirdető neve: Otthon Centrum
Kapcsolattartó: Cseh Attila
Hirdető telefonszáma: +36 70 469 3306
Honlap: -

Üzenetet küldhet a hirdetőnek:
Az Ön neve:
Az Ön e-mail címe:
Üzenet: