Részletes leírás
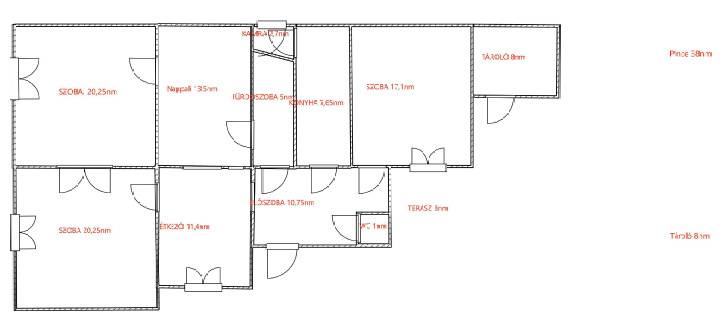
ALAPADATOK:•Helyszín: Budapest, XXII. kerület (Nagytétény központ)•Ház mérete: 108 m²•Telek mérete: 468 m²•Szobák száma: 4•Melléképület: 38 m²-es, különálló boltíves pince•Közművek: Összközműves (víz, gáz, villany, csatorna bent van)•Jogi státusz: Rendezett tulajdoni viszonyok, térképen minden feltüntetve. Hitelezhető (CSOK+ kompatibilis).•Ár: 94.9 M Ft (Irányár – Alkuképes!)________________________________________LEÍRÁS:Eladó egy klasszikus hangulatú, masszív polgári ház Nagytétény központjában, amely azoknak szól, akik nemcsak egy ingatlant, hanem egy jövőbeli otthont keresnek, és egy jó befektetéssel is tudnak számolni.Milyen állapotban van most? Őszinték leszünk: a házra ráfér a modernizálás, hogy megfeleljen a mai kor minden igényének. Ugyanakkor fontos tudni, hogy az ingatlan jelenlegi állapotában is abszolút lakható, a tető rendben van, a fűtés működik. Ez hatalmas előny, hiszen akár azonnal beköltözhet, és menet közben, a saját tempójában alakíthatja át álmai otthonává, nem sürgeti az idő.Miért éri meg anyagilag? Ha körülnéz a XXII. kerületi ingatlanpiacon, láthatja, mennyibe kerülnek a felújított házak ezen a környéken. Ennek az ingatlannak az ára úgy lett meghatározva, hogy még a teljes felújítás költségét hozzáadva is kedvezőbben jön ki a végösszeg, mintha egy kész házat venne. Így a felújításra szánt összeg valójában nem kiadás, hanem értéknövelés, ami a saját zsebében marad.Rejtett tartalékok és lehetőségek:•Két generáció vagy befektetés: A 108 nm-es alapterület és az elrendezés lehetővé teszi, hogy kis ráfordítással két teljesen különálló lakássá alakítsa a házat. Ez tökéletes, ha idős szülőkkel költözne, vagy ha a ház egyik felének kiadásából szeretne extra bevételt.•A Pince: A telken található egy 38 nm-es, különálló, hangulatos boltíves pince. Ez nemcsak tárolásra jó: egy kis fantáziával fantasztikus borozó, műhely vagy „dühöngő” lehet belőle.•A Telek: A 468 nm pont az a méret, ami még élvezhető kertet ad (grillezéshez, pihenéshez), de nem igényel egész hétvégés fűnyírást.Az ingatlan jogilag teljesen tiszta, minden épület szerepel a térképmásolaton, így bármilyen hitelkonstrukcióra alkalmas.Az ár irányár és a tulajdonos nyitott az észszerű ajánlatokra. Jöjjön el, nézze meg a benne rejlő potenciált, és beszélgessünk a lehetőségekről!

Budapest, XXII.kerület
 

Ingatlan adatai
Irányár: 94 900 000 Ft
Típus: ház
Kategória: eladó
Alapterület: 109 m2
Fűtés: gáz (konvektor)
Állapota: -
Szobák száma: 4
Építés éve: 1936
Szintek száma: -
További adatok
Telekterület: 468 m2
Kert mérete: 468 m2
Erkély mérete: 8 m2
Felszereltség: -
Parkolás: -
Kilátás: -
Egyéb extrák:  
-
Hirdető adatai
Hirdető neve: Otthon Centrum
Kapcsolattartó: Pátkai László András
Hirdető telefonszáma: +36 70 388 6321
Honlap: -

Üzenetet küldhet a hirdetőnek:
Az Ön neve:
Az Ön e-mail címe:
Üzenet: