Részletes leírás
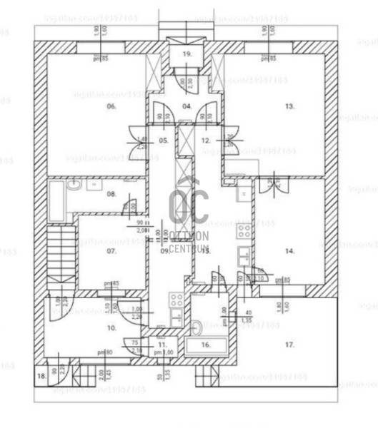
Zugló kedvelt, csendes és zöldövezeti részén, a Gödöllői utcában eladó egy 103 m²-es családi ház, 521 m²-es telekkel.Az ingatlan jelenlegi kialakításában is kétgenerációs otthon, mivel két külön lakrészre bontható, saját konyhákkal, fürdőkkel és külön mérőórákkal.További fejlesztési lehetőségek:-alakítson ki két teljes értékű lakást,-vagy építse be a tetőteret, így növelve a hasznos alapterületet és a befektetés értékét.A kertben tágas terasz, fedett pihenőrész és fészer található, ideális családi, baráti összejövetelekhez.Elhelyezkedés:-Zugló egyik legnyugodtabb, parkos utcájában-Örs vezér tere, M3-as autópálya gyorsan elérhető-Iskolák, óvodák, boltok és tömegközlekedés pár perc sétáraJellemzők:-3+1 fél szoba-Cirkófűtés-Két különálló lakrész lehetősége, külön villanyórával-Lakható állapot, de felújítással és bővítéssel értéknövelő beruházás valósítható megEz az ingatlan kiváló választás mind nagyobb családoknak, mind befektetőknek, akik értéknövelő átalakításban gondolkodnak.Ez az ingatlan a \"Felező csomag\" megbízási portfólióhoz tartozik. Részletek az Otthon Centrum weboldalán.

Budapest, XIV.kerület
 

Ingatlan adatai
Irányár: 185 000 000 Ft
Típus: ház
Kategória: eladó
Alapterület: 103 m2
Fűtés: gáz (cirko)
Állapota: felújítást igényel
Szobák száma: 4
Építés éve: 1950
Szintek száma: -
További adatok
Telekterület: 521 m2
Kert mérete: 521 m2
Erkély mérete: 23 m2
Felszereltség: -
Parkolás: -
Kilátás: -
Egyéb extrák:  
-
Hirdető adatai
Hirdető neve: Otthon Centrum
Kapcsolattartó: Beck Zita
Hirdető telefonszáma: +36 70 388 5726
Honlap: -

Üzenetet küldhet a hirdetőnek:
Az Ön neve:
Az Ön e-mail címe:
Üzenet: