Részletes leírás
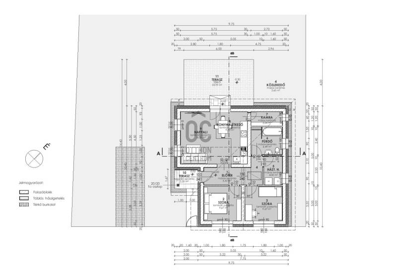
Ceglédbercelen új építésű családi ház eladó!- tégla építésű lakás- 20 cm-es homlokzati, és 30 cm-es födém hőszigetelés- műanyag kívül antracit, belül fehér nyílászárók- elektromos távírányítású hőszigetelt alumínium redőnyök- terrán zenit elegant antracit beoncserép- fűtés komplett hőszivattyús rendszer padlófűtéssel (helyiségenként termosztát), magasoldalfali fan-coilok hűtésre, melegvíz készítés tárolóba- hidegburkolat 5000ft-ig választható- melegburkolat 4000 ft-ig választható- szinterezett ereszcsatorna antracit színben- térkövezett személygépkocsi belálló- utcafronti kerítés roppantott kerítéskő,fémszerkezetű kapukkal festett kivitelben- elektromos kapunyitó és kaputelefon a vételárban- riasztó kiépítve,beüzemelve- átadás 2026 április végeOtthon Start, Csok plusz támogatott hitelre alkalmas az ingatlan, továbbá bármilyen jeláloghitel is felvehető rá!Ceglédbercel falusi Csok-os településMegtekintéssel és bővebb információval kapcsolatban várom megtisztelő hívását.

Pest megye, Ceglédbercel
 

Ingatlan adatai
Irányár: 63 000 000 Ft
Típus: ház
Kategória: eladó
Alapterület: 70 m2
Fűtés: -
Állapota: új
Szobák száma: 3
Építés éve: 2025
Szintek száma: -
További adatok
Telekterület: 473 m2
Kert mérete: 473 m2
Erkély mérete: 24 m2
Felszereltség: -
Parkolás: -
Kilátás: -
Egyéb extrák:  
-
Hirdető adatai
Hirdető neve: Otthon Centrum
Kapcsolattartó: Szoboszlai Katalin
Hirdető telefonszáma: +36 70 469 3221
Honlap: -

Üzenetet küldhet a hirdetőnek:
Az Ön neve:
Az Ön e-mail címe:
Üzenet: