Részletes leírás
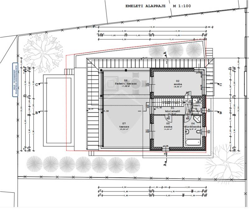
Képzeljen el egy otthont, ahol a mindennapok egyet jelentenek a békével, a kényelemmel és a modern eleganciával. Budapest XXI. kerületének egyik legkeresettebb részén, a Királyerdő tetején várja Önt ez az új építésű, prémium családi ház, amely tökéletes választás azok számára, akik a városi pezsgéstől távol, mégis könnyedén elérhetően keresik álmaik otthonát.Egy Otthon, Ahol Minden A Kényelmet SzolgáljaEz a 174 m²-es, modern luxus ingatlan egy 544 m²-es, gyönyörűen parkosított telken helyezkedik el, ideális teret biztosítva családjának a feltöltődésre és a kikapcsolódásra.Főbb jellemzők, melyek Önt is rabul ejtik:Tágas Életérzés: 4 hálószoba és 3 fürdőszoba biztosítja a privát szféra és a kényelem luxusát minden családtag számára.Fényárban Úszó Terek: A tágas, fényes nappali egybenyitott az étkezővel és a modern konyhával, 30 nm nagyságú terasszal medencével,így tökéletes helyszínt biztosít a családi összejöveteleknek és a baráti vacsoráknak.Kikapcsolódás A Szabadban: Az emeleten található nagy, részben fedett 40 nm-es terasz ideális a reggeli kávézáshoz, esti beszélgetésekhez vagy akár nagyobb vendéglátásokhoz.Saját Medence a Nyári Élvezetekért: Az udvarban kialakításra kerülő 8x4 méteres medencetest garantálja a nyári családi szórakozást és felfrissülést.Kiemelkedő Műszaki Tartalom – A Jövő Otthona Már Ma!Ez az ingatlan nem csupán esztétikus, hanem a legmodernebb technológiával is fel van szerelve, biztosítva a hosszú távú értékállóságot és az alacsony fenntartási költségeket.Masszív és Időtálló Szerkezet: A monolit vasbeton sávalap és a 30 cm-es szigetelésű betonfödém garantálja a stabilitást és az energiahatékonyságot.Prémium Minőségű Nyílászárók: A háromrétegű üvegezésű alumínium nyílászárók elektromos redőnyökkel nemcsak kiváló hang- és hőszigetelést biztosítanak, hanem kényelmes és biztonságos használatot is.Korszerű Fűtés és Hűtés: A hőszivattyús rendszer padlófűtéssel és mennyezetfűtéssel/-hűtéssel a ház minden helyiségében – beleértve a garázst is – egész évben kellemes hőmérsékletet biztosít, miközben rendkívül energiahatékony.Mindig Friss Levegő: A szellőztetőrendszer folyamatosan friss, pollen- és allergénmentes levegőt juttat a házba, hozzájárulva az Ön és családja egészségéhez.Fenntartható és Költséghatékony: A 7 kW teljesítményű napelemrendszer gondoskodik az energiatakarékos üzemeltetésről, jelentősen csökkentve a rezsiköltségeket.Extrák a Kényelemért: Elektromos kapu és garázskapu, valamint antracit színű WPC kerítés körben a telken – minden, ami a modern otthonhoz elengedhetetlen.Kiváló Elhelyezkedés – Minden Egy Kézben!A Királyerdő tetején elhelyezkedő ház kiváló infrastruktúrával rendelkezik, így minden fontos szolgáltatás karnyújtásnyira van:Pár perces sétára: Háziorvosi rendelő, patika, óvoda és iskola – minden, ami a mindennapokhoz szükséges.10 perc autóútra: Spar, Lidl, Aldi, Penny, és a helyi piac a bevásárlási lehetőségek széles választékát kínálják.5 perces út: Csepeli Strand, fagyizó, éttermek és a Duna, ahonnan komppal gyorsan elérhető Soroksár – kikapcsolódási és szórakozási lehetőségek a közelben.Ez az ingatlan nem csak egy ház, hanem egy életérzés. Egy otthon, ahol a luxus, a kényelem és a természet találkozik, és ahol Ön és családja a legszebb emlékeket gyűjtheti.Tervezett átadás: 2025. Ősz – Ne maradjon le erről a kivételes lehetőségről!Érdeklődjön még ma, és tegyen egy lépést álmai otthona felé Királyerdőn!

Budapest, XXI.kerület
 

Ingatlan adatai
Irányár: 199 000 000 Ft
Típus: ház
Kategória: eladó
Alapterület: 174 m2
Fűtés: -
Állapota: új
Szobák száma: 4
Építés éve: 2025
Szintek száma: -
További adatok
Telekterület: 544 m2
Kert mérete: 544 m2
Erkély mérete: 70 m2
Felszereltség: -
Parkolás: -
Kilátás: kertre néző
Egyéb extrák:  
-
Hirdető adatai
Hirdető neve: Rock Home
Kapcsolattartó: Németi-Loósz Henriett
Hirdető telefonszáma: +36 70 412 5641
Honlap: -

Üzenetet küldhet a hirdetőnek:
Az Ön neve:
Az Ön e-mail címe:
Üzenet: