Részletes leírás
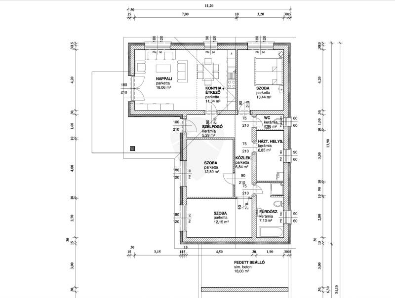
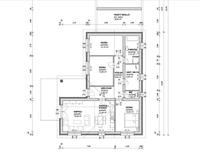
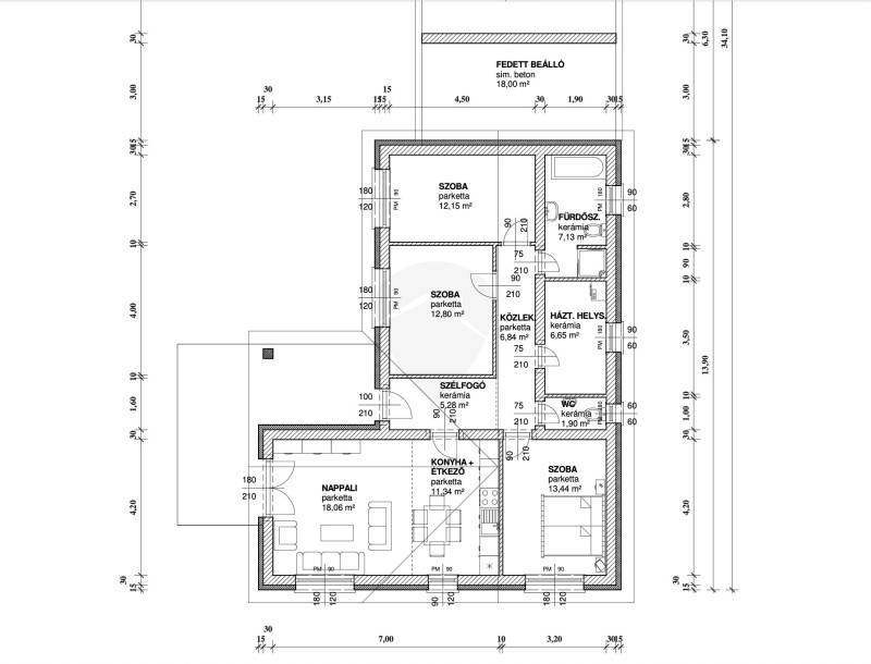
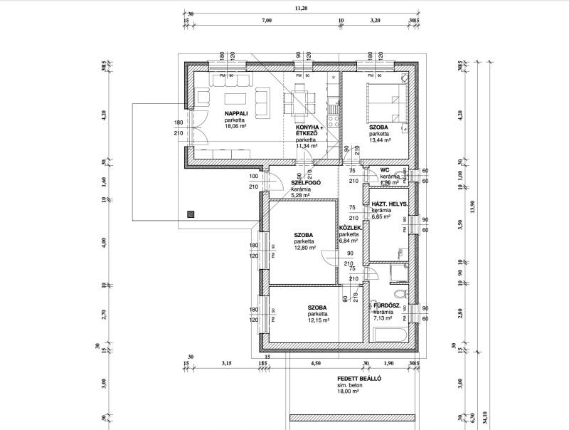
Kókán a Nagykátai úton, egy újépítésű ikerház kerül értékesítésre, amely ingatlanonként nettó 95 m²-es hasznos lakóteret kínál, plusz fedett gépkocsi beálló jár az ingatlanhoz.Jól átgondolt, világos, tágas terek jellemzik, 3 hálószoba + amerikai konyhás nappali, WC, fürdőszoba, háztartási helyiség található az ingatlanban.Ikerházak fedett gépkocsi beállókon keresztül csatlakoznak egymáshoz!Igény esetén, plusz költség fejében garázs kialakítása is lehetséges.CSOK Plusz támogatás, Otthon Start igényelhető!Építési és műszaki jellemzők:30-as tégla falazat, 10 cm-es Ytong belső falazat.Fa födém.Antracit színű betoncserép fedés.Homlokzat: 10 cm Grafitos EPS szigetelés.Talajnedvesség szigetekés: 1 rtg GV4Padló: 10 cm lépésálló szigetelés.Födém: fa gerendák gombaölő szerrel kezelve, 25 cm ásványgyapot szigeteléssel.Nyílászárók: háromrétegű üvegezéssel ellátott thermo nyílászárókA fűtési rendszer hőszivattyús, padlófűtéssel kombinálva biztosítja a meleget és a melegvizet.Utcafronti kerítés: színezett zsalukő pillér + vas kétszárnyú kapu fa lécezésselVálasztható műszaki tartalom (meghatározott keretösszegen belül):Hidegburkolat: 3000 Ft/m²-ig.Melegburkolat: 3000 Ft/m²-ig.Csaptelepek: 15.000 Ft/dbKád vagy zuhany: 40.000 FtMosdó: 40.000 Ft/dbWC: 25.000 Ft/dbElektromos rendszer:Konnektorok:Szobák: 3 dbNappali: 4 db + internet és kábel-TV kiállásKonyha: 6 dbVilágítás: helyiségenként 1 pontKábeltévé: előkészítésRiasztó: előkészítésKapumozgató elektronika: előkészítésExtra opciók:Magasabb kategóriás anyagok választása költségkülönbözet finanszírozása mellett.Riasztó- és kapumozgató rendszer előkészítése.Most érdemes vásárolni, mert a piacon az ingatlan árak tekintetében még mindig emelkedés várható!Hívj még ma!

Pest megye, Kóka
 

Ingatlan adatai
Irányár: 65 000 000 Ft
Típus: ház
Kategória: eladó
Alapterület: 95 m2
Fűtés: -
Állapota: új
Szobák száma: 3
Építés éve: 2025
Szintek száma: -
További adatok
Telekterület: 1 022 m2
Kert mérete: 1 022 m2
Erkély mérete: -
Felszereltség: -
Parkolás: -
Kilátás: udvari
Egyéb extrák:  
-
Hirdető adatai
Hirdető neve: Intor Ingatlan Powered By RH
Kapcsolattartó: Kertész Rebeka
Hirdető telefonszáma: +36 70 467 6820
Honlap: -

Üzenetet küldhet a hirdetőnek:
Az Ön neve:
Az Ön e-mail címe:
Üzenet: