Részletes leírás
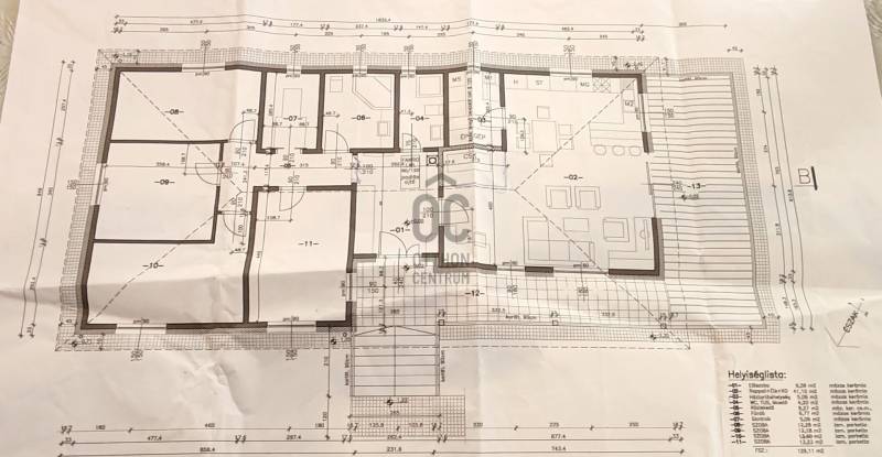
✨ Prémium otthon a Balaton közelében – ahová hazaérkezni élmény!Van egy hely a Balaton déli partján, ahol a reggelek madárcsicsergéssel indulnak, a kilátás a szőlőhegyekre nyílik, és a naplementét a saját teraszodról csodálhatod.Ez nem álom – ez most valóság!Eladó egy 2023-ban épült, különleges gondossággal és prémium anyagokkal kivitelezett, Wolf System technológiás családi ház Balatonboglár-Szőlőskislakon, mindössze 5 km-re a Balatontól.Ez az ingatlan nem csak lakóhely, hanem életminőség-váltás – a csend, tér, fény és kényelem tökéletes egysége.________________________________________Otthon, ami minden részletében értéket sugároz:•129 m²-es lakótér, gondosan megtervezett elrendezéssel•45 m²-es, L-alakú terasz – a ház ékszerdoboza, ami körbe öleli az otthont•1.633 m²-es hatalmas telek – teljesen körbekerített, parkosított, megosztható•Lehetőség újabb ingatlan építésére is, befektetőknek álom________________________________________✨ Tökéletes belső elosztás, ahol mindenki megtalálja a saját terét:•4 világos, külön nyíló szoba – tökéletes hálószobák, gyerekszobák vagy dolgozószoba is lehet•Hatalmas, napfényes amerikai konyhás nappali és étkező – a családi élet központja•2 stílusos fürdőszoba (egyik kádas, másik zuhanyzós – mindkettő WC-vel)________________________________________ Minőség, amit érezni fogsz – már az első lépésnél:•Wolf System építési technológia – kivételes hő- és hangszigetelés, stabilitás•15 cm külső, 30 cm födémszigetelés, 10 cm aljzatszigetelés – alacsony fenntartási költségek•Betoncserép tető – elegancia és tartósság egyben•Nobo elektromos fűtés + kandalló – modern és tradicionális megoldások ötvözése•2 inverteres klíma – hűtés és fűtés maximális hatékonysággal•Kömmerling 3 rétegű, hőhídmentesített nyílászárók – német precizitás, kiváló energetikai mutatók•Minden ablakon redőny és szúnyogháló – extra kényelem és biztonság•Sötétítőfüggönyök a nappaliban és a konyhában – modern stílus, árnyékolás profin megoldva________________________________________Külső környezet – ami beleszeretteti az embert:•Lenyűgöző kilátás a szomszédos Szőlősgyörök hegyeire – egyedi panoráma, amit nem lehet megunni•Csendes, forgalommentes környék – valódi nyugalom, ahol a természet a szomszéd•Több autó számára kényelmes beállás a saját telken belül•Biztonságos, tágas udvar gyermekeknek, háziállatoknak – a szabadság élménye a saját kertben•Hely medencének, kerti sütögetőnek, játszótérnek, veteményesnek – amire csak vágysz!________________________________________ Kinek ajánljuk ezt a kivételes otthont?✅ Családoknak, akik tágas, minőségi otthonra vágynak nyugodt környezetben✅ Akik a Balaton közelében, de nem a turistaforgatag közepén szeretnének élni✅ Befektetőknek – a megosztható telek és az építési lehetőség páratlan érték✅ Nyugdíjasoknak, akik a természetet, nyugalmat, kényelmet keresik✅ Mindenkinek, aki a minőséget, a gondosságot és a nyugalmat választja________________________________________✨ Ez több mint ingatlan – ez egy új élet kezdete.Az ilyen adottságokkal bíró, prémium minőségű, azonnal költözhető házak extrém ritkák a térségben – ne engedje el, ha megszólította!Hívjon bizalommal és egyeztessünk megtekintést – garantáljuk, hogy élőben még lenyűgözőbb!

Somogy megye, Balatonboglár
 

Ingatlan adatai
Irányár: 165 000 000 Ft
Típus: ház
Kategória: eladó
Alapterület: 129 m2
Fűtés: -
Állapota: új
Szobák száma: 4
Építés éve: 2023
Szintek száma: -
További adatok
Telekterület: 1 633 m2
Kert mérete: 1 633 m2
Erkély mérete: 20 m2
Felszereltség: -
Parkolás: -
Kilátás: -
Egyéb extrák:  
-
Hirdető adatai
Hirdető neve: Otthon Centrum
Kapcsolattartó: Füstösné Vizvári Mónika
Hirdető telefonszáma: +36 70 716 9321
Honlap: -

Üzenetet küldhet a hirdetőnek:
Az Ön neve:
Az Ön e-mail címe:
Üzenet: