Részletes leírás
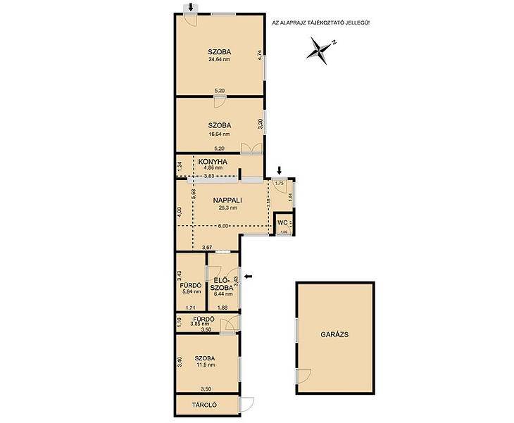
XV. KERÜLETBEN, PESTÚJHELYEN, CSENDES MELLÉKUTCÁBAN ELADÓ 100 M2-ES, FELÚJÍTANDÓ, 2 LAKRÉSZBŐL ÁLLÓ, ÖNÁLLÓ CSALÁDI HÁZ GARÁZZSALAZ ÉPÜLET JELLEMZŐI:Az elsődleges lakrészbe 3 bejárati lehetőség nyílik: az előkertről a nagyszobába, egy előszobába, valamint az amerikai konyhás nappaliba. A melléképületben kialakított lakrész külön bejárattal rendelkezik. Az ablakok cseréje megtörtént műanyagra, a melléképületben fakeretesek. A fűtést cirkó gázkazán biztosítja lapradiátorokon keresztül, de a két fő szobában gázkonvektor és cserépkályha van beépítve. A garázs jelenleg szobaként funkcionál. A járólapok jó állapotúak. A HÁZ RÉSZEI:- előszoba- amerikai konyhás nappali- 2 hálószoba - fürdőszoba - plusz mosdó- külön bejáratú szoba, fürdővelPARKOLÁS:Ingyenesen a ház előtti utcafronton, udvarban, illetve garázsbanKÖZLEKEDÉS:Közelben a 231-es busz közlekedik, pár perc sétára 7, 8E, 108E, 277, 979FINANSZÍROZÁS:Az ingatlan hitelre is megvásárolható. Bankfüggetlen tanácsadóink, az ország összes pénzintézete közül gyorsan és gördülékenyen találja meg az Önnek legmegfelelőbb konstrukciót, egyedi kedvezményekkel. A hitel közvetítés díjmentes.IRÁNYÁR: 64,9 M FT VEVŐINK RÉSZÉRE A KÖZVETÍTÉS DÍJTALAN!!A hirdetésben szereplő adatok tájékoztatás jellegűek!

Budapest, XV.kerület
Pestújhely 

Ingatlan adatai
Irányár: 64 900 000 Ft
Típus: ház
Kategória: eladó
Alapterület: 100 m2
Fűtés: gáz (cirko)
Állapota: felújítást igényel
Szobák száma: 3
Építés éve: 1950
Szintek száma: -
További adatok
Telekterület: 337 m2
Kert mérete: 337 m2
Erkély mérete: -
Felszereltség: -
Parkolás: -
Kilátás: -
Egyéb extrák:  
-
Hirdető adatai
Hirdető neve: MPD Hungary Kft.
Kapcsolattartó: Újhely Ingatlan Kft.
Hirdető telefonszáma: +36202885981
Honlap: -

Üzenetet küldhet a hirdetőnek:
Az Ön neve:
Az Ön e-mail címe:
Üzenet: