Részletes leírás
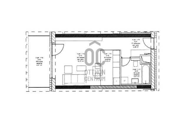
Kiadó egy 33 m²-es, fiatalos, világos és teljesen bútorozott egy szobás lakás a közkedvelt BudaPart Lakóparkban, közvetlenül a Kopaszi-gát szomszédságában. A lakás ideális választás mindazok számára, akik értékelik a modern városi kényelmet, ugyanakkor ragaszkodnak a praktikus és minőségi kialakításhoz.A lakásról:-33 m² alapterület, egy szoba-Ízlésesen berendezett, azonnal költözhető-Bútorozott és jól felszerelt, modern konyha-Tágas, világos tér klímával és elektromos redőnnyel-Saját terasz kilátással a szépen gondozott kertre , a friss levegő és pihenés lehetőségévelA környékről:A BudaPart Lakópark a Kopaszi-gát közvetlen közelében, Budapest egyik legvonzóbb és legdinamikusabban fejlődő részén található. A környék nyugodt, rendezett és zöldövezeti hangulatú, miközben a belváros gyorsan elérhető.A közelben minden megtalálható, ami a mindennapok kényelmét biztosítja: sétányok, éttermek, kávézók, edzőtermek és egyéb szolgáltatások.A közlekedés kiváló:A környékről könnyen elérhetők a város fontos pontjai, legyen szó tömegközlekedésről vagy autós közlekedésről. Ideális választás azoknak, akik a városi élet és a természet közelségét egyaránt szeretnék élvezni.A lakás előnyei:-Újépítésű, modern társasház minőségi szolgáltatásokkal-Fiatalos, világos enteriőr, gondosan megválasztott bútorokkal-Azonnal költözhető, nincs szükség plusz beruházásra-Kiváló lokáció a Kopaszi-gát és a városközpont közelségévelBérleti díj: 265.000 Ft / hóKaució: 2 havi bérleti díjIgény esetén garázs is bérelhető hozzá.Kisállat tartása előzetes megbeszélést igényel! Ez a lakás tökéletes választás egyedülállóknak vagy fiatal pároknak, akik stílusos, praktikus és hosszú távon is élhető otthont keresnek Budapest egyik legkedveltebb városrészében.Amennyiben felkeltette érdeklődését, kérem, keressen bizalommal időpont egyeztetés céljából.

Budapest, XI.kerület
 

Ingatlan adatai
Irányár: 265 000 Ft/hó
Típus: lakás (tégla)
Kategória: kiadó
Alapterület: 33 m2
Fűtés: távfűtés
Állapota: -
Szobák száma: 1
Építés éve: 2021
Szintek száma: -
További adatok
Telekterület: -
Kert mérete: -
Erkély mérete: -
Felszereltség: -
Parkolás: -
Kilátás: kertre néző
Egyéb extrák:  
-
Hirdető adatai
Hirdető neve: Otthon Centrum
Kapcsolattartó: Pálinkás Laura
Hirdető telefonszáma: +36 70 469 3966
Honlap: -

Üzenetet küldhet a hirdetőnek:
Az Ön neve:
Az Ön e-mail címe:
Üzenet: