Részletes leírás
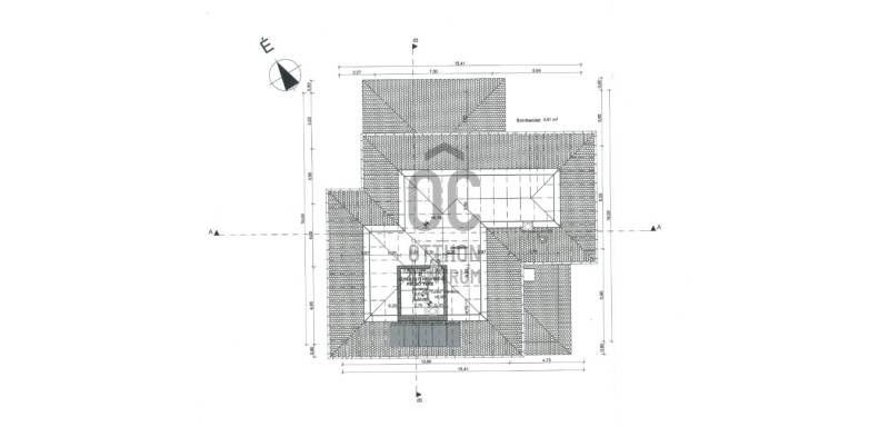
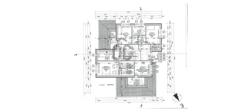
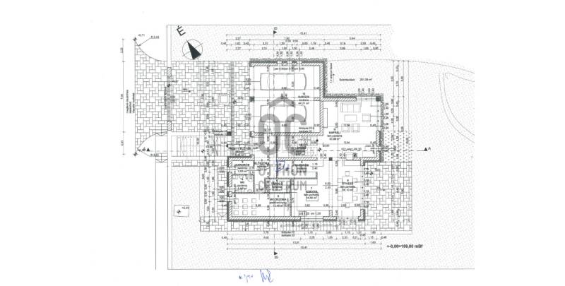
Eladásra kínálok a III. kerület legkeresettebb részén, Aranyhegyen, egy 2016-ban épült, 303 m²-es, két szintes, újszerű állapotú luxus családi házat, mely egy tágas, 1008 m²-es, gondosan kialakított telken helyezkedik el.Az otthon központi tere a világos, impozáns amerikai konyhás nappali, amely tökéletes színtere a családi és baráti összejöveteleknek. A házban öt hálószoba található, mindegyikhez saját gardrób kapcsolódik, így a funkcionalitás és a kényelem egyszerre érvényesül.Az ingatlant ízléses belsőépítészeti megoldások, prémium anyaghasználat és letisztult elegancia jellemzi. A ház minden részlete a minőség és a kifinomult stílus jegyében készült, a tulajdonos saját részére építette, kompromisszumok nélkül.Főbb jellemzők:•15 cm grafitos hőszigetelés – garantált energiahatékonyság•Mitsubishi Zubadan hőszivattyú plafon- és padlófűtés/hűtés rendszerrel•3 rétegű fa nyílászárók, elektromos redőnyökkel és szúnyoghálókkal•Kizárólag prémium minőségű burkolatok és szaniterekRezsi költségek rendkívül kedvezőek:•Áram kb. 38.000 Ft/hó•Víz + csatorna kb. 26.000 Ft / 2 hónapA kétszintes garázsban és a kertben kialakított felszíni beállókon összesen akár 4 autó kényelmesen elfér.A környék presztízsértékű: kizárólag új építésű ingatlanok, rendezett utcák és csendes környezet. Az infrastruktúra kiemelkedő – 3 perc sétára található a buszmegálló, amely közvetlenül a Csillaghegyi HÉV-hez visz, autóval pedig percek alatt elérhető a Bécsi út vagy a Szentendrei út. A közelben a Mészkő Park és a Csillaghegyi Strandfürdő is élményt kínál a kikapcsolódáshoz.Ez az ingatlan több, mint egy ház – ez egy életérzés, ahol a luxus és a harmónia együtt valósul meg. Megtekintés kapcsán várom megtisztelő hívását – rugalmasan, akár hétvégén is!

Budapest, III.kerület
 

Ingatlan adatai
Irányár: 429 000 000 Ft
Típus: ház
Kategória: eladó
Alapterület: 303 m2
Fűtés: -
Állapota: -
Szobák száma: 6
Építés éve: 2016
Szintek száma: -
További adatok
Telekterület: 1 008 m2
Kert mérete: 1 008 m2
Erkély mérete: 42 m2
Felszereltség: -
Parkolás: -
Kilátás: -
Egyéb extrák:  
-
Hirdető adatai
Hirdető neve: Otthon Centrum
Kapcsolattartó: Bényei Lilla
Hirdető telefonszáma: +36 70 461 9751
Honlap: -

Üzenetet küldhet a hirdetőnek:
Az Ön neve:
Az Ön e-mail címe:
Üzenet: