Részletes leírás
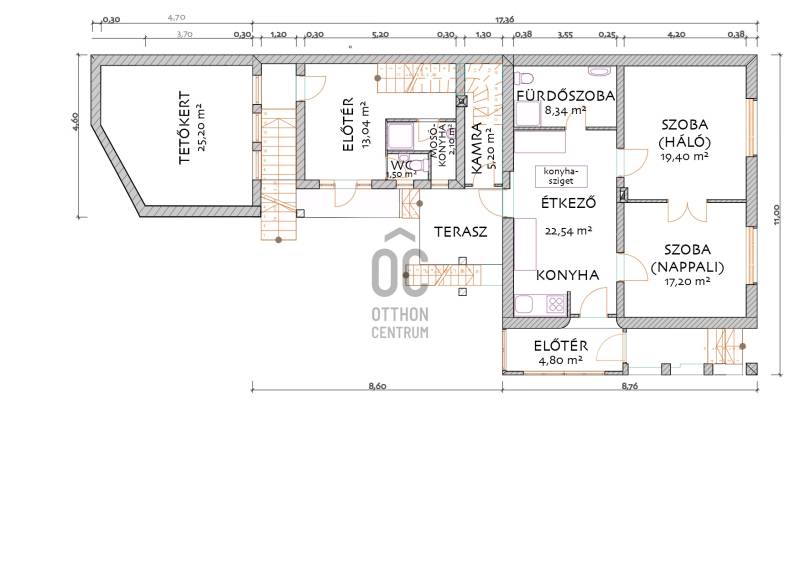
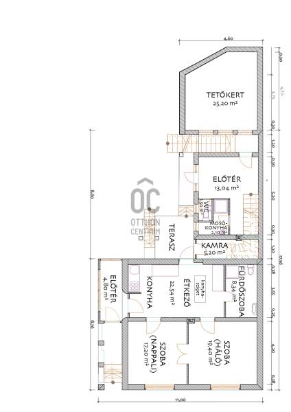
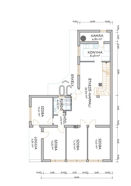
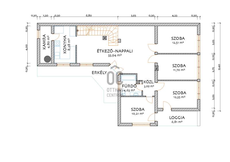
Zugló kertvárosi részén főútvonalakhoz közel, mégis csendes mellékutcában társasházzá alakítható családi házat ajánlok. Telek: 644 m2. 2 külön bejáratú lakás, plusz az alsó szinten egy 52 nm-es iroda, vállalkozás részére alkalmas lakrész lett kialakítva. A fogyasztások lakásonként külön mérhetők.A lakások és helyiségek ingatlanon belüli elosztásáról használati megosztás készült. . Földszint: 52 nm irodának, vállalkozásnak. Teljes műszaki és esztétikai felújítás 2016. után megtörtént. 2 szoba+ konyha+ wc1. szint: 77 nm lakás teljes műszaki és esztétikai felújítás 2016. után. 2 szoba + étkező-konyha + fürdő, wc. + kertre néző erkély, fűtés: 2 hűtő-fűtő klíma, elektromos panel.1-2. szint 118,5 nm lakás , jó állapot. Fűtés: gáz kazán, radiátoros, 2 hűtő-fűtő klíma. Nappali-étkező + 4 szoba + konyha+ fürdő-wc+ mosókonyha+ wc+ kamra+ utcára néző loggiaAlagsor: 30.5 nm tároló, kazán helyiség felújított. borospince kb. 5 nmGarázs: 29,7 nm 2 állásos, víz bekötve, felújítás félkész állapotban.Kerti tároló : 18 nm teljesen felújított, szigetelt, vízcsap falikúttal. (raktárnak is )A ház és a garázs mellett a kert felöli egy nagy kb. 60 nm-es teraszon pihenhet és grillezhet nyáron. A szépen gondozott kertben több helyen kerti csap, zuhanyzó és magaságyás is található. A már növésben lévő különleges fák, bokrok kellemes árnyat adnak a nyári melegben. ( Japán fűz, ginkó biloba, eukaliptusz, füge, stb). A ház külső szigetelése és vakolása részben elkészült, a befejezés és a szinezés az új vevőre vár. Jelenleg a garázs és a földszinti beépített veranda felett egy 29 és 25 nm-es zöldtető kialakítás folyamatban van, ezeket egy híd köti majd össze. Közlekedés: a 77-es troliVásárlás: CBA_Príma, Lidl, Spar, pékség, Bosnyák téri piac, hamarosan megnyílik ugyanitt a Zenit Corso új bevásárlóközpont. Igény esetén a ház társasházzá alakítható. EGYÜTT ÉS MÉGIS KÜLÖN! Több generációs családoknak, barátoknak ideális választás. MUNKAHELY OTTHON! + BEFEKTETÉS! A földszinti rész vállalkozóknak iroda, bemutatóterem, kisebb műhely részére is tökéletes. A kerti kis ház raktárnak is használható. Jól kiadható, hosszú távra biztos bevétel.LKe-1/1 , Beépíthető: 30%

Budapest, XIV.kerület
 

Ingatlan adatai
Irányár: 269 000 000 Ft
Típus: ház
Kategória: eladó
Alapterület: 279 m2
Fűtés: elektromos
Állapota: -
Szobák száma: 9
Építés éve: 1994
Szintek száma: -
További adatok
Telekterület: 644 m2
Kert mérete: 644 m2
Erkély mérete: 13 m2
Felszereltség: -
Parkolás: -
Kilátás: -
Egyéb extrák:  
-
Hirdető adatai
Hirdető neve: Otthon Centrum
Kapcsolattartó: Tamás Eszter
Hirdető telefonszáma: +36 70 716 9646
Honlap: -

Üzenetet küldhet a hirdetőnek:
Az Ön neve:
Az Ön e-mail címe:
Üzenet: