Részletes leírás
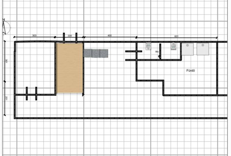
IX. kerület egyik legkedveltebb részén található szuper jó lokációval rendelkező, bruttó 151 nm (nettó 147 nm) befektetési ingatlan eladó. Teljes áram és vízhálózat ki lett építve. A fűtés padlófűtéssel van megoldva. Belső-Ferencváros egyik legkedveltebb részén, kiváló közlekedéssel és infrastruktúrával. A közelben: Kálvin tér, Vásár Csarnok, a Corvin-negyed, valamint a Duna-part is könnyedén elérhető. A környék tele van éttermekkel, kávézókkal, boltokkal, és kulturális lehetőségekkel.Ingatlan adatai:- bruttó 151 nm, nettó 147 nm,- jó elosztású ingatlan 5 szoba helyiséggel - Villany, saját villanyórával, - Víz, csatorna és víz órával ellátott,- Padlófűtés - tehermentes- Rendezett társasház, folyamatosan karbantartott,- Közös költség: 38 000 Ft,- Azonnal birtokba vehető- Befektetésnek kiváló- jelenleg albérlővel együtt eladó- ókos villanyórával van ellátvaBefektetési ajánlatok:- Iroda,- Konditerem,- Étterem, kávézó,- Vállalkozás központja,- Munkásszálló,- Pince lakás ( Nyugati országokban nagyon gyakori, amely nálunk is egyre inkább terjed),- Szépségszalon- Wellness Stúdió,- Jóga központ Várom hívását, keressen bizalommal!

Budapest, IX.kerület
 

Ingatlan adatai
Irányár: 46 000 000 Ft
Típus: kereskedelmi/ipari ingatlan
Kategória: eladó
Alapterület: 147 m2
Fűtés: -
Állapota: -
Szobák száma: -
Építés éve: 1910
Szintek száma: -
További adatok
Telekterület: -
Kert mérete: -
Erkély mérete: -
Felszereltség: -
Parkolás: -
Kilátás: -
Egyéb extrák:  
-
Hirdető adatai
Hirdető neve: Otthon Centrum
Kapcsolattartó: Szabó Zsuzsanna
Hirdető telefonszáma: +36 70 716 8656
Honlap: -

Üzenetet küldhet a hirdetőnek:
Az Ön neve:
Az Ön e-mail címe:
Üzenet: